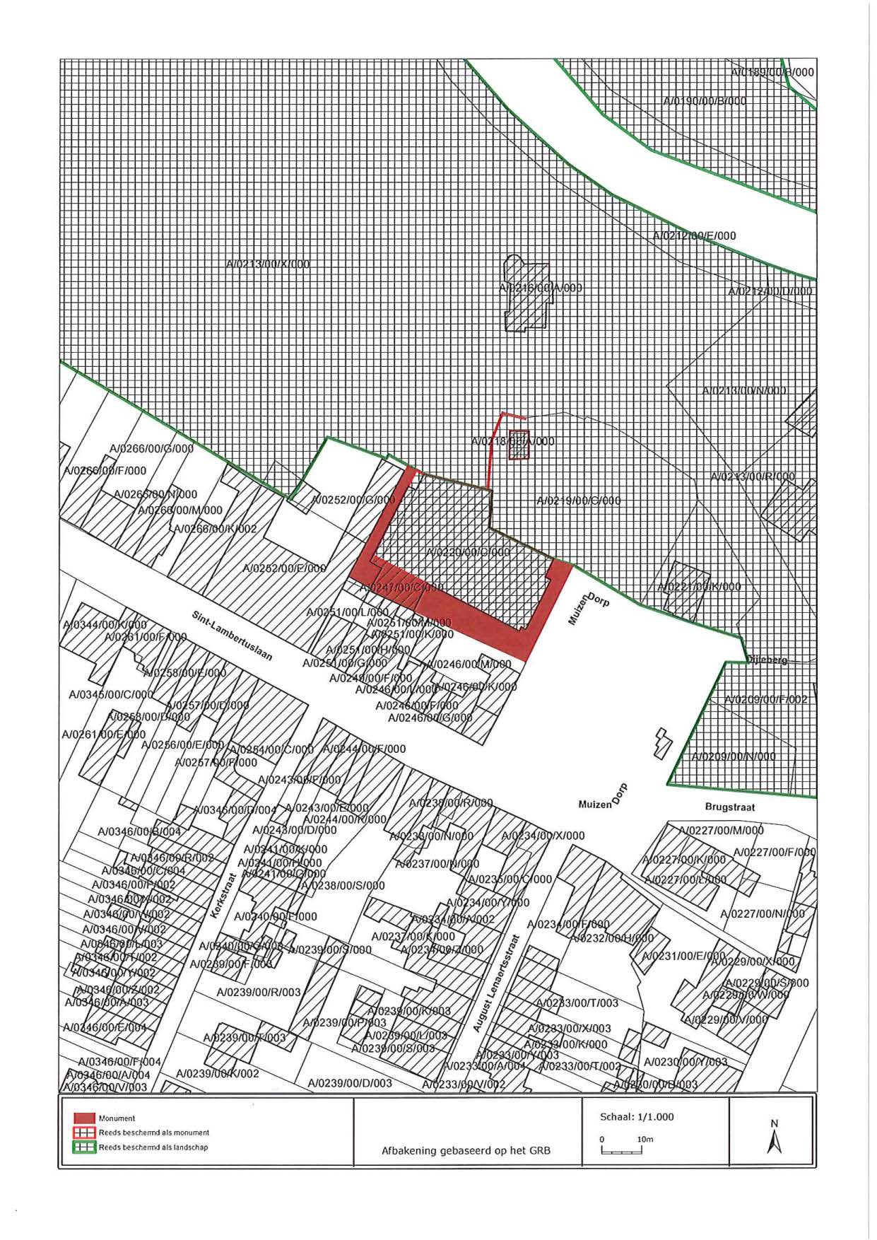
BESLUIT

Pastorie Sint-Lambertusparochie en omgeving

ID: 5249 URI : https://id.erfgoed.net/besluiten/5249

Voorlopige beschermingsbesluiten

Aanduidingstype Beschermd monument
Provincie Antwerpen
Uitgevaardigd als Ministeriële besluiten
Ondertekend door Bourgeois, Geert
Datum ondertekening
Belgisch staatsblad Gepubliceerd op , jaargang 183, nummer 375
De digitale publicatie kan je vinden
Opmerkingen -

Relaties

Wordt gevolgd door: Pastorie Sint-Lambertusparochie en omgeving
Definitieve beschermingsbesluiten

Items opgenomen in dit besluit

De gegevens worden opgehaald


    Downloads

    Bestanden
    Alle bestanden downloaden
    Besluit
    20131112_2.pdf
    Plan
    20131112_2_plan_recto.jpg
    Plan
    20131112_2_plan_verso.jpg
    Metadata

    Beheerder besluit: Agentschap Onroerend Erfgoed