BESLUIT

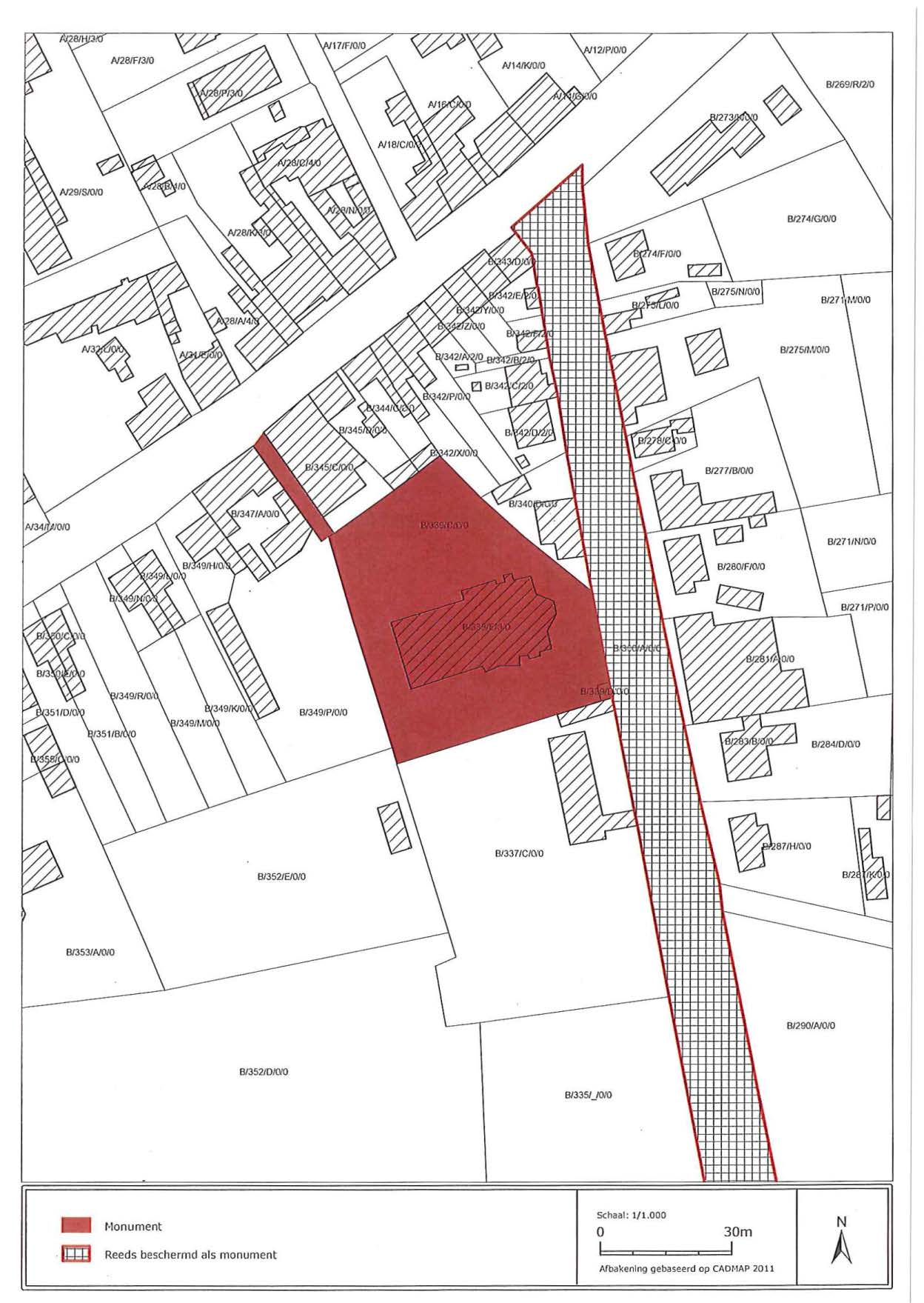
Parochiekerk Onze-Lieve-Vrouw en Sint-Jan-Baptist met cultuurgoederen, kerkhof en toegangsweg

ID: 5215 URI : https://id.erfgoed.net/besluiten/5215

Voorlopige beschermingsbesluiten

Aanduidingstype Beschermd monument
Provincie Oost-Vlaanderen
Uitgevaardigd als Ministeriële besluiten
Ondertekend door Bourgeois, Geert
Datum ondertekening
Belgisch staatsblad Gepubliceerd op , jaargang 183, nummer 309
De digitale publicatie kan je vinden
Opmerkingen te Deinze (Bachte-Maria-Leerne)

Relaties

Wordt gevolgd door: Parochiekerk Onze-Lieve-Vrouw en Sint-Jan-Baptist met cultuurgoederen, kerkhof en toegangsweg
Definitieve beschermingsbesluiten

Items opgenomen in dit besluit

De gegevens worden opgehaald


    Downloads

    Bestanden
    Alle bestanden downloaden
    Besluit
    20130913_8.pdf
    Plan
    20130913_8_plan_recto.jpg
    Plan
    20130913_8_plan_verso.jpg
    Metadata

    Beheerder besluit: Agentschap Onroerend Erfgoed