BESLUIT

Villa Van den Akker

ID: 5212 URI : https://id.erfgoed.net/besluiten/5212

Voorlopige beschermingsbesluiten

Aanduidingstype Beschermd monument
Provincie Limburg
Uitgevaardigd als Ministeriële besluiten
Ondertekend door Bourgeois, Geert
Datum ondertekening
Belgisch staatsblad Gepubliceerd op , jaargang 183, nummer 309
De digitale publicatie kan je vinden
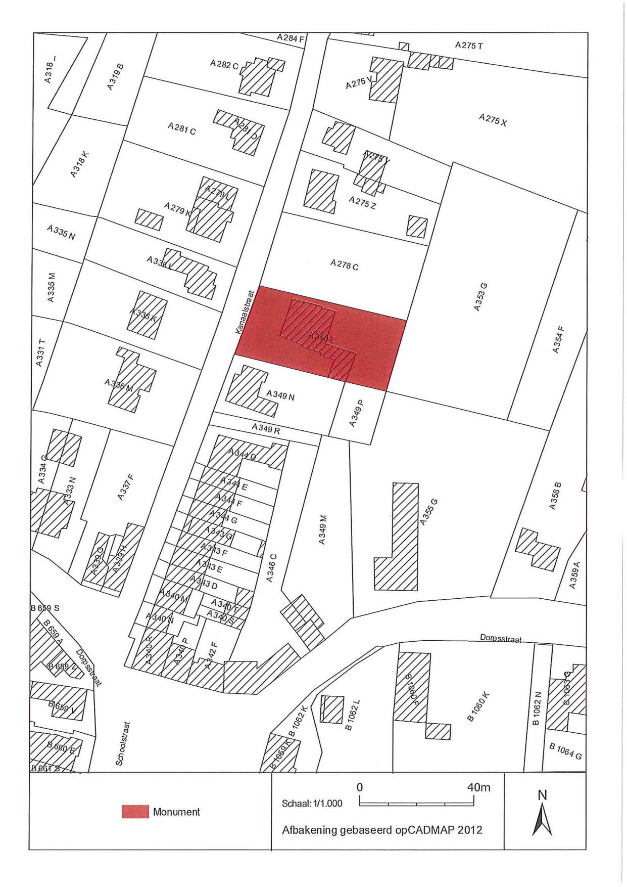
Opmerkingen te Neerpelt (Sint-Huibrechts-Lille)

Relaties

Wordt gevolgd door: Villa Van den Akker
Definitieve beschermingsbesluiten

Items opgenomen in dit besluit

De gegevens worden opgehaald


    Downloads

    Bestanden
    Alle bestanden downloaden
    Besluit
    20130913_5.pdf
    Plan
    20130913_5_plan_recto.jpg
    Plan
    20130913_5_plan_verso.jpg
    Metadata

    Beheerder besluit: Agentschap Onroerend Erfgoed