BESLUIT

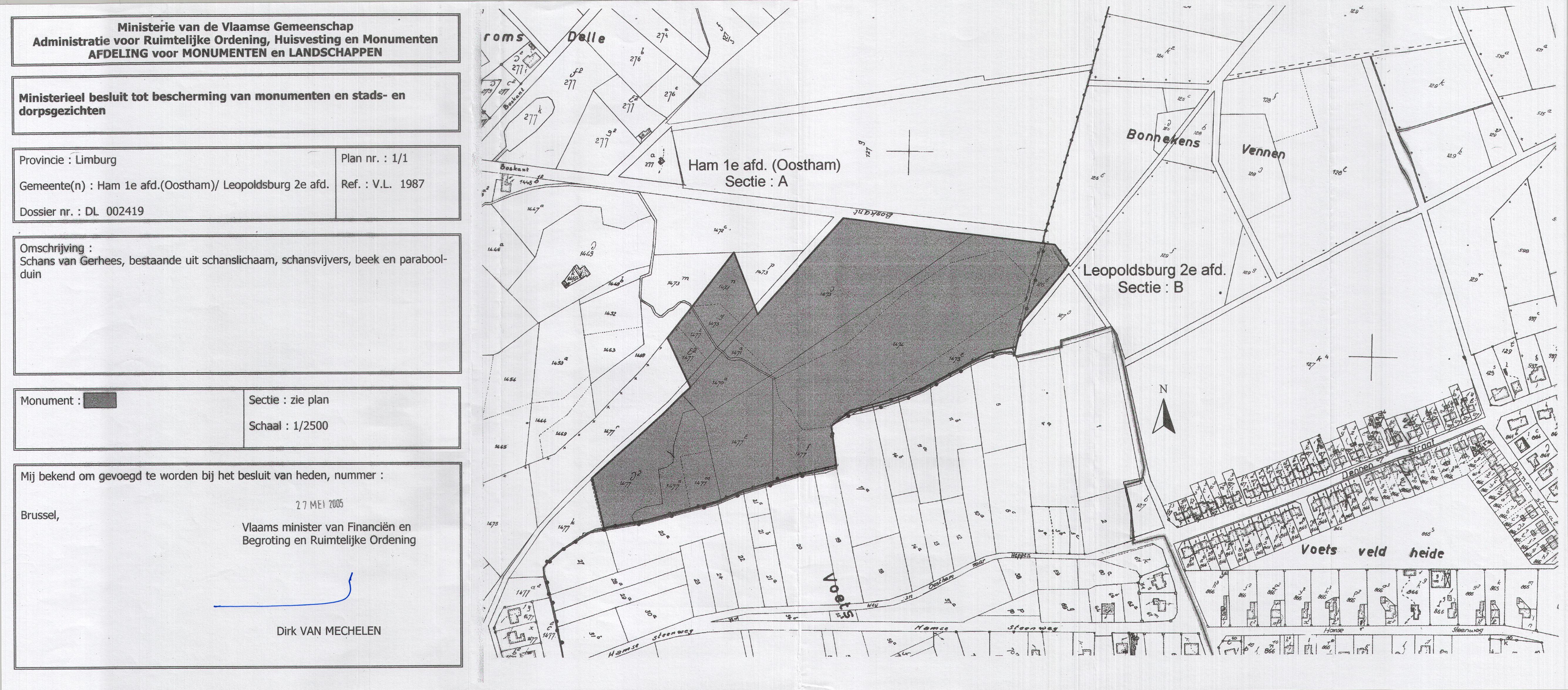
Schans van Gerhees

ID: 4389 URI : https://id.erfgoed.net/besluiten/4389

Definitieve beschermingsbesluiten

Aanduidingstype Beschermd monument
Provincie Limburg
Uitgevaardigd als Ministeriële besluiten
Ondertekend door Van Mechelen, Dirk
Datum ondertekening
Belgisch staatsblad Gepubliceerd op , jaargang 175, nummer 203
De digitale publicatie kan je vinden
Opmerkingen met schanslichaam, schansvijvers, beek en paraboolduin te Ham (Oostham)

Items opgenomen in dit besluit

De gegevens worden opgehaald


    Downloads

    Bestanden
    Alle bestanden downloaden
    Besluit
    4389.pdf
    Plan
    4389_plan.jpg
    Metadata

    Beheerder besluit: Agentschap Onroerend Erfgoed