BESLUIT

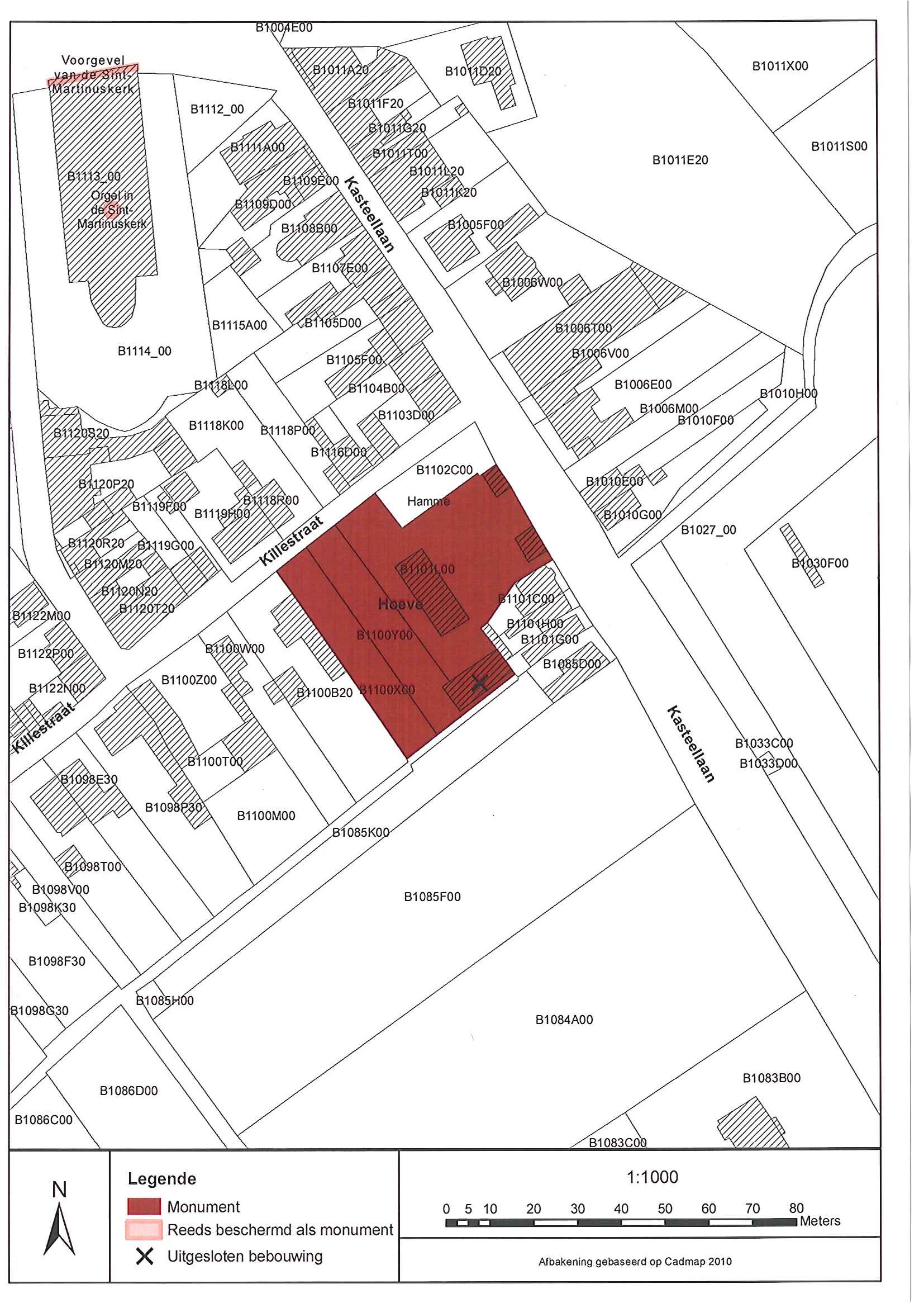
Hoeve

ID: 10909 URI : https://id.erfgoed.net/besluiten/10909

Voorlopige beschermingsbesluiten

Aanduidingstype Beschermd monument
Provincie Oost-Vlaanderen
Uitgevaardigd als Ministeriële besluiten
Ondertekend door Bourgeois, Geert
Datum ondertekening
Belgisch staatsblad Gepubliceerd op , jaargang 182, nummer 18
De digitale publicatie kan je vinden
Opmerkingen zonder de uitgesloten percelen, zie kaart; Kasteellaan te Hamme (Moerzeke)

Relaties

Wordt gevolgd door: Hoeve
Definitieve beschermingsbesluiten

Items opgenomen in dit besluit

De gegevens worden opgehaald


    Downloads

    Bestanden
    Alle bestanden downloaden
    Besluit
    20111202_1.pdf
    Plan
    20111202_1_plan_verso.jpg
    Plan
    20111202_1_plan_recto.jpg
    Metadata

    Beheerder besluit: Agentschap Onroerend Erfgoed