BESLUIT

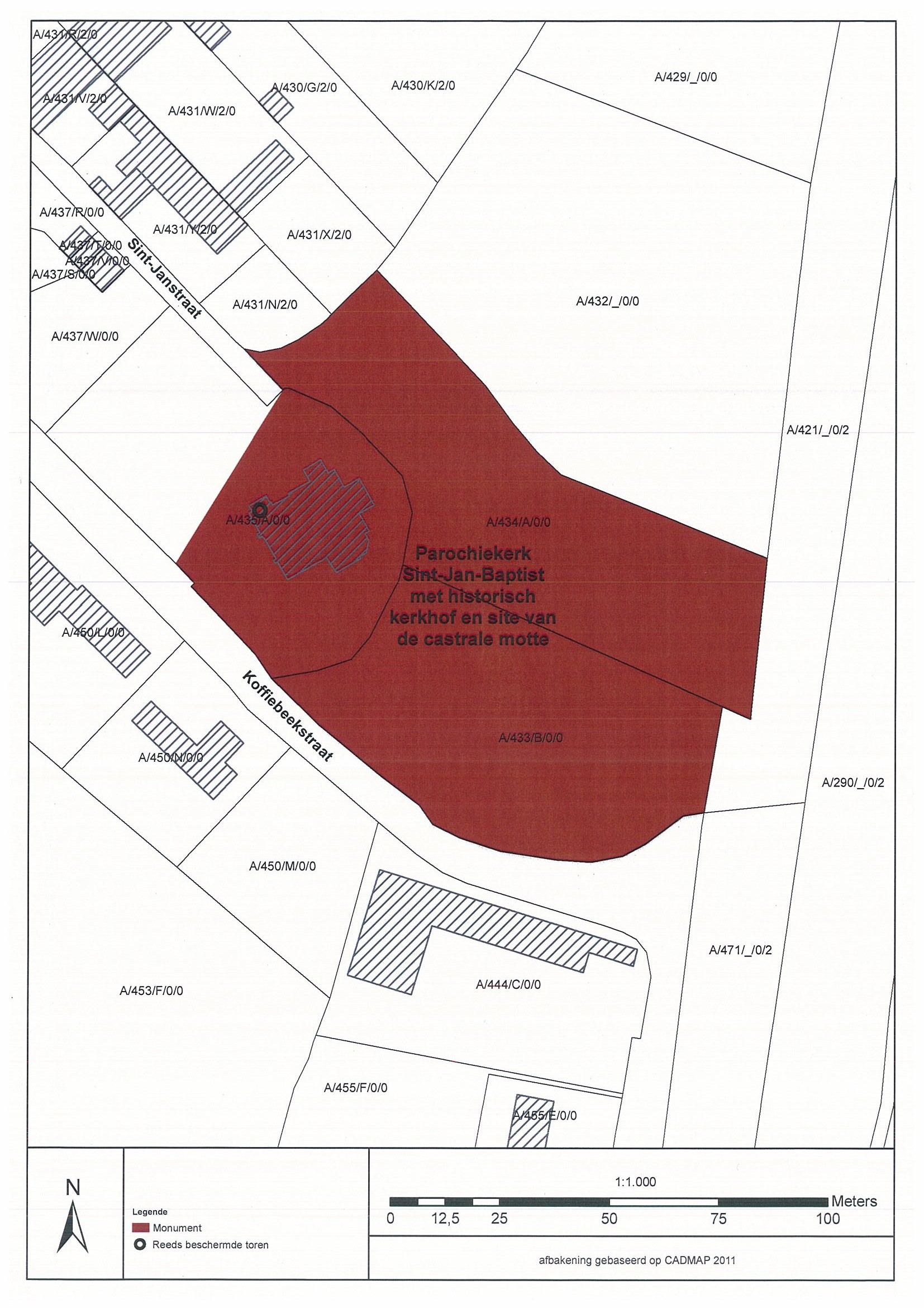
Parochiekerk Sint-Jan-Baptist met cultuurgoederen, kerkhof en site van de castrale motte

ID: 10891 URI : https://id.erfgoed.net/besluiten/10891

Voorlopige beschermingsbesluiten

Aanduidingstype Beschermd monument
Provincie Oost-Vlaanderen
Uitgevaardigd als Ministeriële besluiten
Ondertekend door Bourgeois, Geert
Datum ondertekening
Belgisch staatsblad Gepubliceerd op , jaargang 182, nummer 143
De digitale publicatie kan je vinden
Opmerkingen te Deinze (Grammene)

Items opgenomen in dit besluit

De gegevens worden opgehaald


    Downloads

    Bestanden
    Alle bestanden downloaden
    Besluit
    20120312_1.pdf
    Plan
    20120312_1_plan_recto.jpg
    Plan
    20120312_1_plan_verso.jpg
    Metadata

    Beheerder besluit: Agentschap Onroerend Erfgoed