BESLUIT

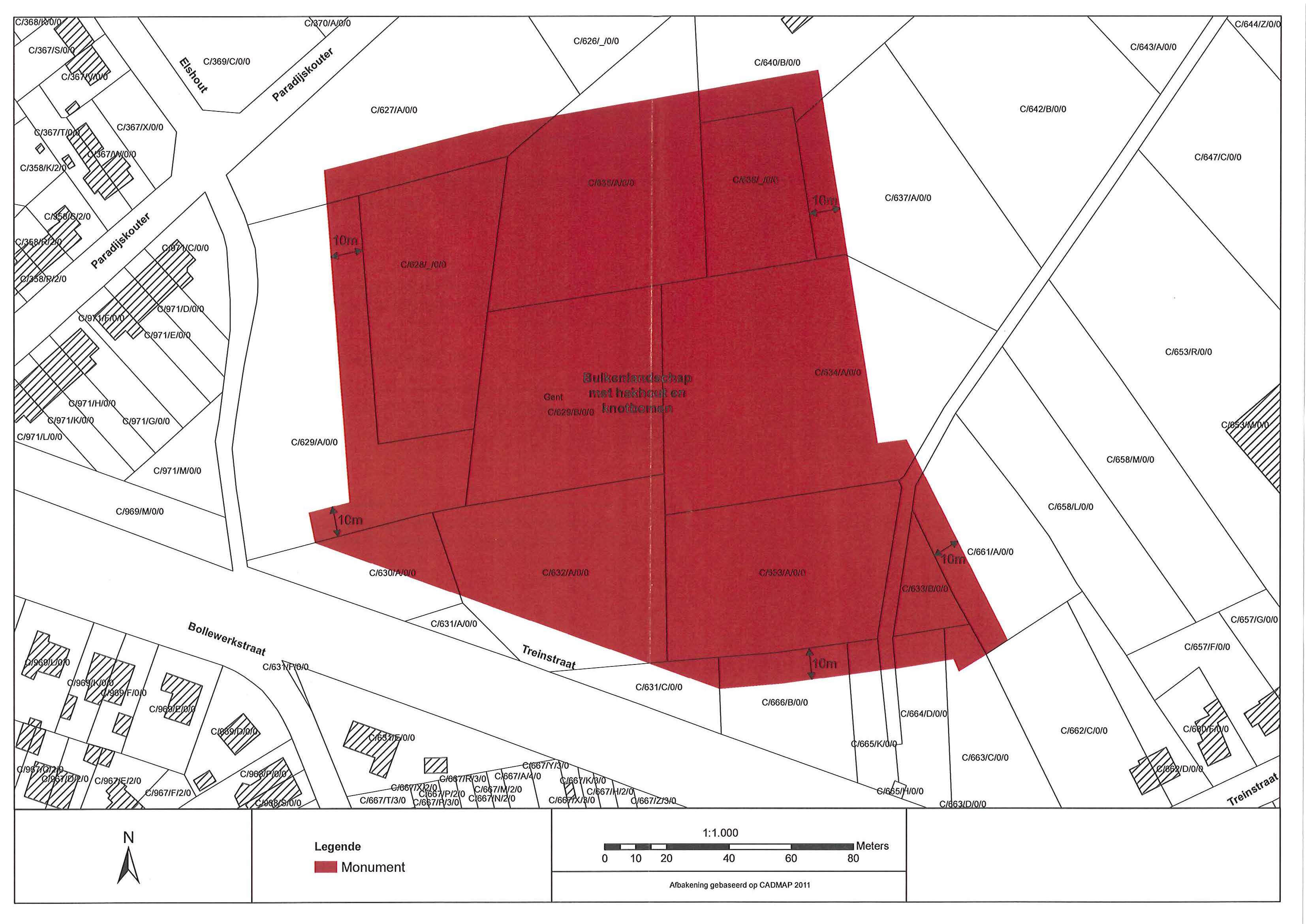
Bulkenlandschap met hakhout en knotbomen

ID: 10879 URI : https://id.erfgoed.net/besluiten/10879

Voorlopige beschermingsbesluiten

Aanduidingstype Beschermd monument
Provincie Oost-Vlaanderen
Uitgevaardigd als Ministeriële besluiten
Ondertekend door Bourgeois, Geert
Datum ondertekening
Belgisch staatsblad Gepubliceerd op , jaargang 182, nummer 361
De digitale publicatie kan je vinden
Opmerkingen -

Items opgenomen in dit besluit

De gegevens worden opgehaald


    Downloads

    Bestanden
    Alle bestanden downloaden
    Besluit
    20121011_3.pdf
    Plan
    20121011_3_plan_recto.jpg
    Plan
    20121011_3_plan_verso.jpg
    Metadata

    Beheerder besluit: Agentschap Onroerend Erfgoed