BESLUIT

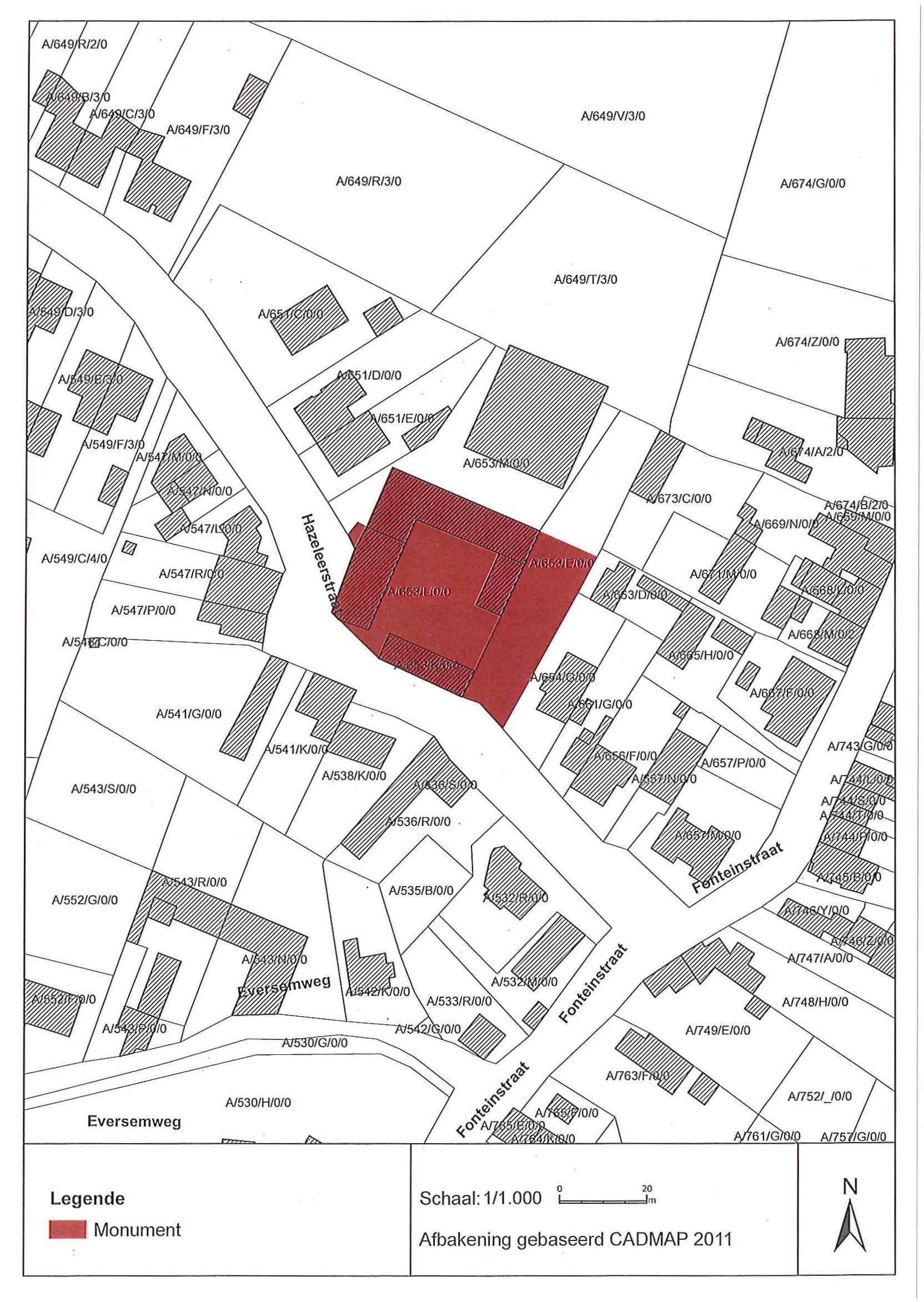
Hof te Hazeleer met gekasseide binnenplaats

ID: 10833 URI : https://id.erfgoed.net/besluiten/10833

Voorlopige beschermingsbesluiten

Aanduidingstype Beschermd monument
Provincie Oost-Vlaanderen
Uitgevaardigd als Ministeriële besluiten
Ondertekend door Bourgeois, Geert
Datum ondertekening
Belgisch staatsblad Gepubliceerd op , jaargang 182, nummer 331
De digitale publicatie kan je vinden
Opmerkingen te Ninove (Okegem)

Items opgenomen in dit besluit

De gegevens worden opgehaald


    Downloads

    Bestanden
    Alle bestanden downloaden
    Besluit
    20120927_1.pdf
    Plan
    20120927_1_plan_recto.jpg
    Plan
    20120927_1_plan_verso.jpg
    Metadata

    Beheerder besluit: Agentschap Onroerend Erfgoed