BESLUIT

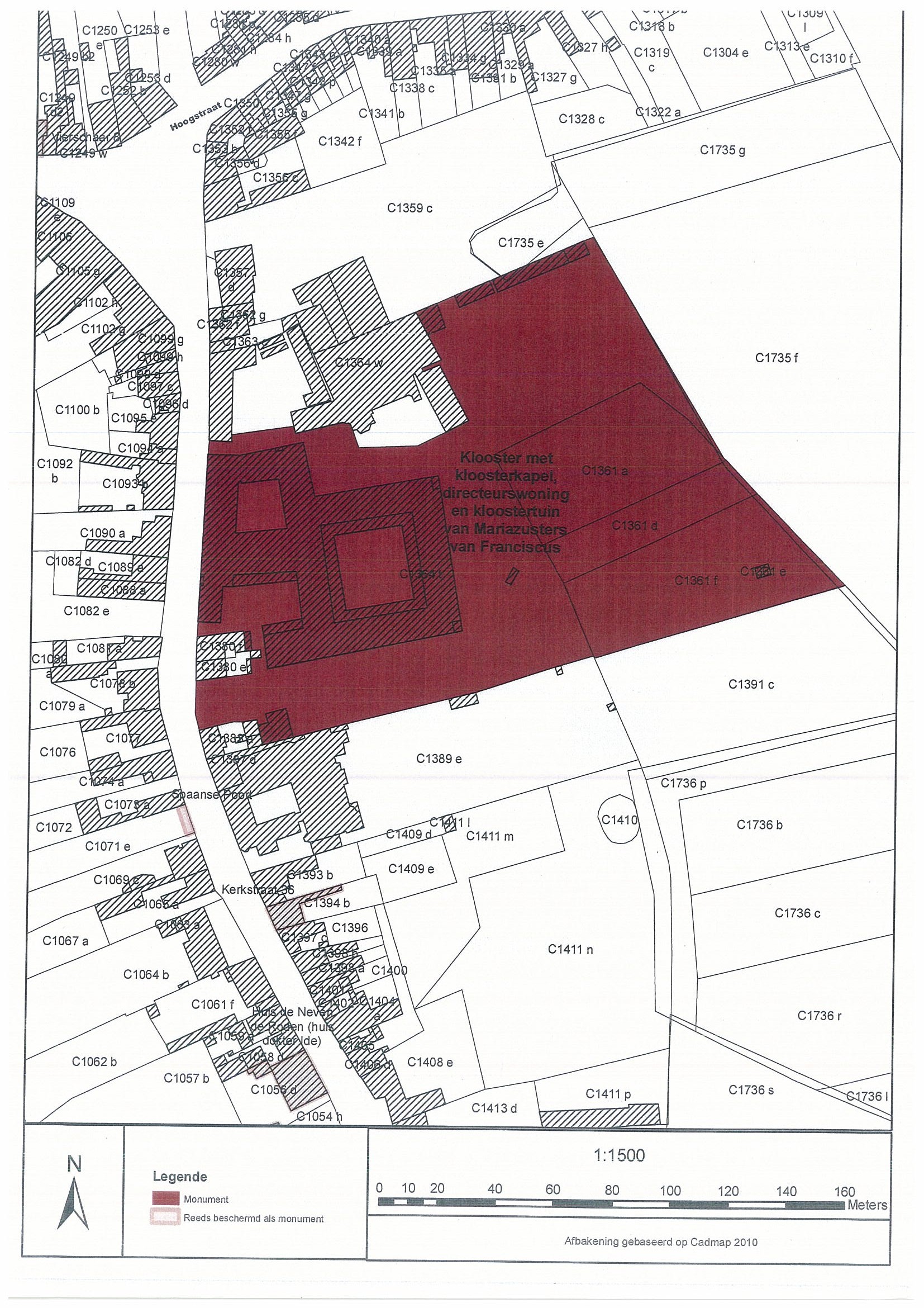
Klooster van mariazusters van franciscus met cultuurgoederen, kapel, directeurswoning en kloostertuin

ID: 10781 URI : https://id.erfgoed.net/besluiten/10781

Voorlopige beschermingsbesluiten

Aanduidingstype Beschermd monument
Provincie Oost-Vlaanderen
Uitgevaardigd als Ministeriële besluiten
Ondertekend door Bourgeois, Geert
Datum ondertekening
Belgisch staatsblad Gepubliceerd op , jaargang 181, nummer 233
De digitale publicatie kan je vinden
Opmerkingen te Waasmunster (Waasmunster)

Relaties

Items opgenomen in dit besluit

De gegevens worden opgehaald


    Downloads

    Bestanden
    Alle bestanden downloaden
    Besluit
    20110722_20.pdf
    Plan
    20110722_20_plan_recto.jpg
    Plan
    20110722_20_plan_verso.jpg
    Metadata

    Beheerder besluit: Agentschap Onroerend Erfgoed