BESLUIT

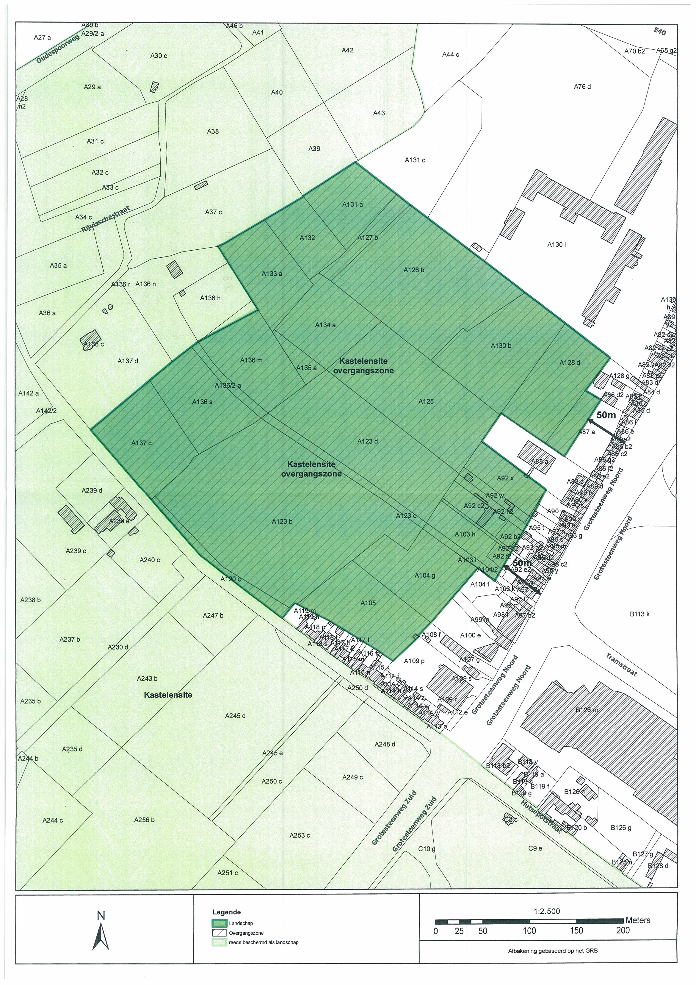
Overgangszone bij beschermd landschap Kastelensite

ID: 10756 URI : https://id.erfgoed.net/besluiten/10756

Voorlopige beschermingsbesluiten

Aanduidingstype Beschermd cultuurhistorisch landschap
Provincie Oost-Vlaanderen
Uitgevaardigd als Ministeriële besluiten
Ondertekend door Bourgeois, Geert
Datum ondertekening
Belgisch staatsblad Gepubliceerd op , jaargang 181, nummer 233
De digitale publicatie kan je vinden
Opmerkingen te Gent (Zwijnaarde)

Relaties

Wordt gevolgd door: Overgangszone bij beschermd landschap Kastelensite
Definitieve beschermingsbesluiten

Items opgenomen in dit besluit

De gegevens worden opgehaald


    Downloads

    Bestanden
    Alle bestanden downloaden
    Besluit
    20110728_8.pdf
    Plan
    20110728_8_plan_verso.jpg
    Plan
    20110728_8_plan_recto.jpg
    Metadata

    Beheerder besluit: Agentschap Onroerend Erfgoed