BESLUIT

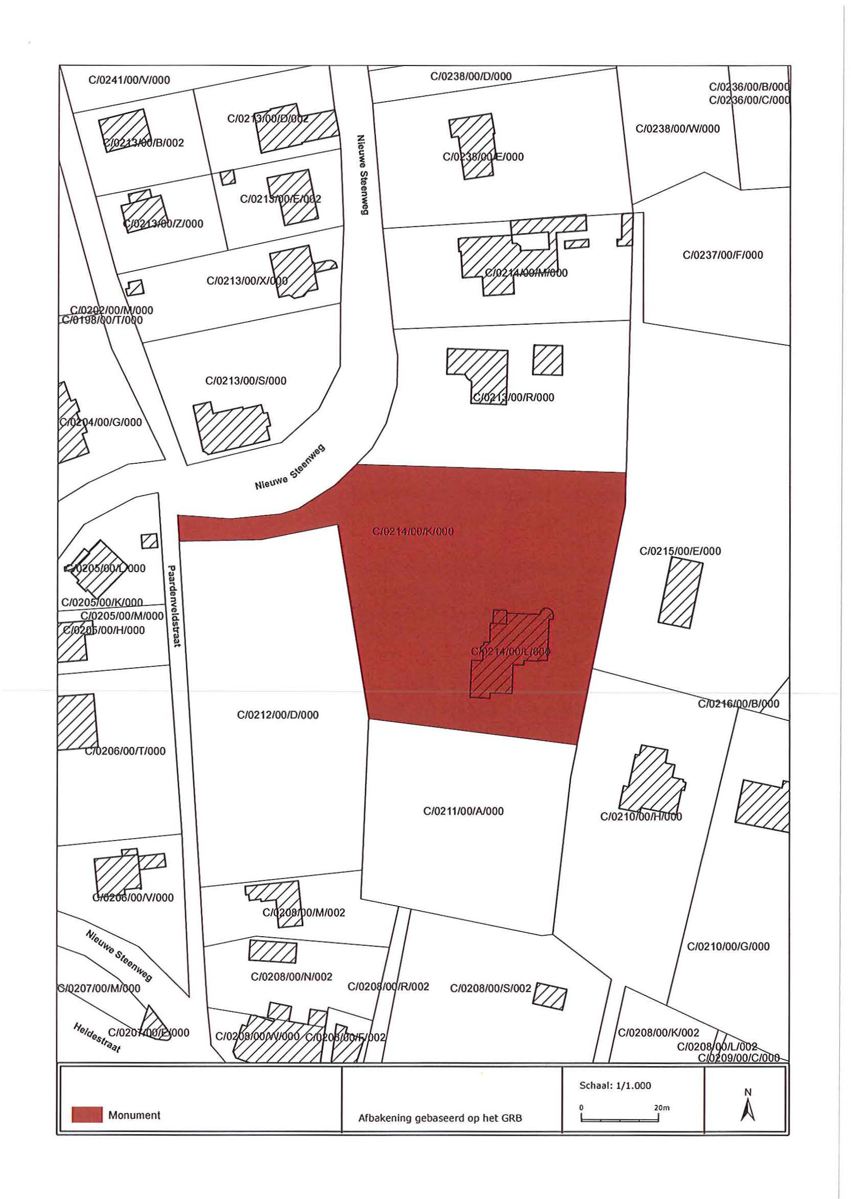
Architectenwoning Paul Stevens met tuin en oprijlaan

ID: 10679 URI : https://id.erfgoed.net/besluiten/10679

Voorlopige beschermingsbesluiten

Aanduidingstype Beschermd monument
Provincie Vlaams-Brabant
Uitgevaardigd als Ministeriële besluiten
Ondertekend door Bourgeois, Geert
Datum ondertekening
Belgisch staatsblad Gepubliceerd op , jaargang 183, nummer 158
De digitale publicatie kan je vinden
Opmerkingen -

Relaties

Wordt gevolgd door: Architectenwoning Paul Stevens met tuin
Definitieve beschermingsbesluiten

Items opgenomen in dit besluit

De gegevens worden opgehaald


    Downloads

    Bestanden
    Alle bestanden downloaden
    Besluit
    20130419_3.pdf
    Plan
    20130419_3_plan_recto.jpg
    Plan
    20130419_3_plan_verso.jpg
    Metadata

    Beheerder besluit: Agentschap Onroerend Erfgoed