BESLUIT

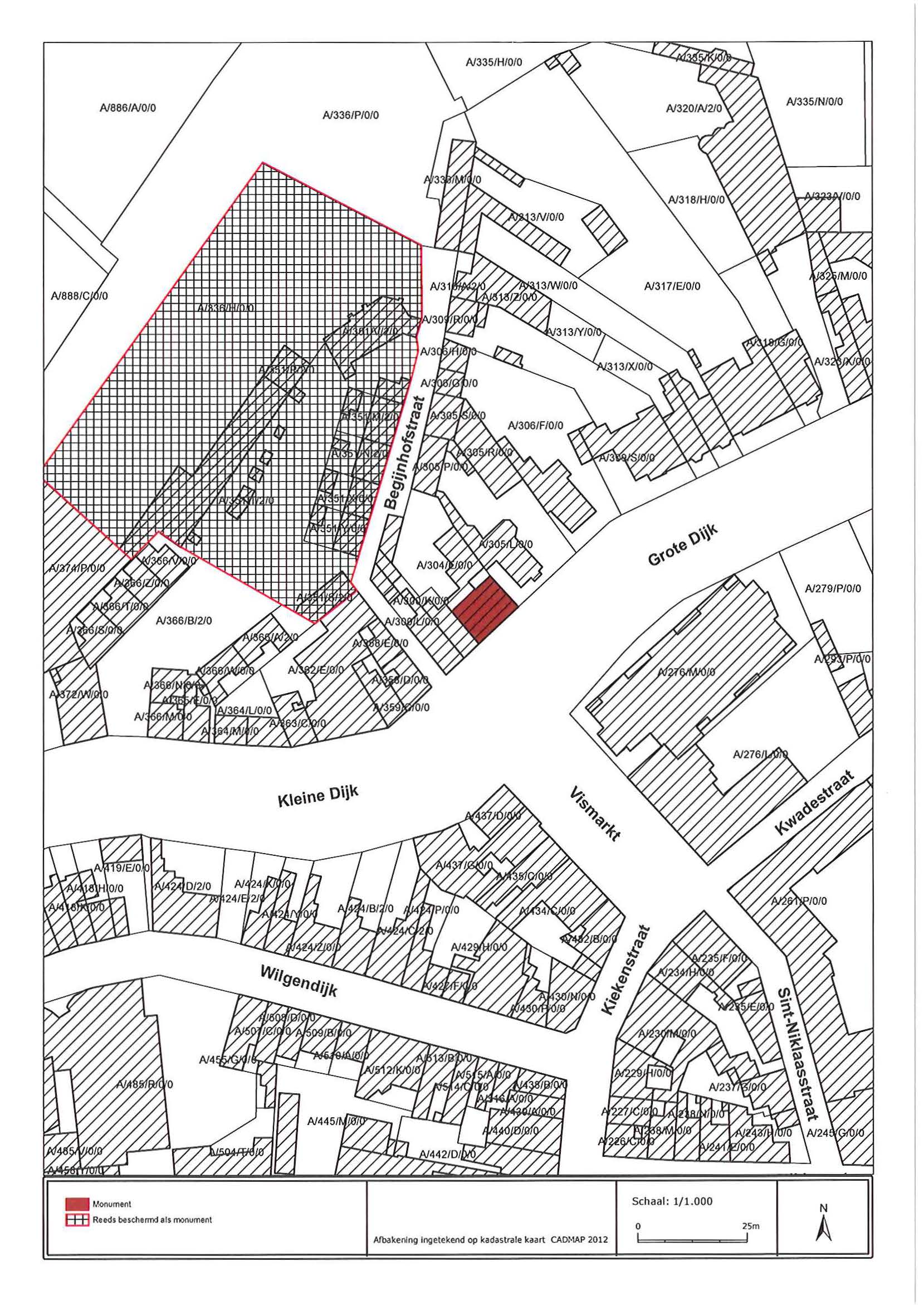
Herberg Den Papegaai

ID: 10675 URI : https://id.erfgoed.net/besluiten/10675

Voorlopige beschermingsbesluiten

Aanduidingstype Beschermd monument
Provincie West-Vlaanderen
Uitgevaardigd als Ministeriële besluiten
Ondertekend door Bourgeois, Geert
Datum ondertekening
Belgisch staatsblad Gepubliceerd op , jaargang 183, nummer 215
De digitale publicatie kan je vinden
Opmerkingen v612

Relaties

Wordt gevolgd door: Herberg Den Papegaai
Definitieve beschermingsbesluiten

Items opgenomen in dit besluit

De gegevens worden opgehaald


    Downloads

    Bestanden
    Alle bestanden downloaden
    Besluit
    20130605_4.pdf
    Plan
    20130605_4_plan_verso.jpg
    Plan
    20130605_4_plan_recto.jpg
    Metadata

    Beheerder besluit: Agentschap Onroerend Erfgoed