BESLUIT

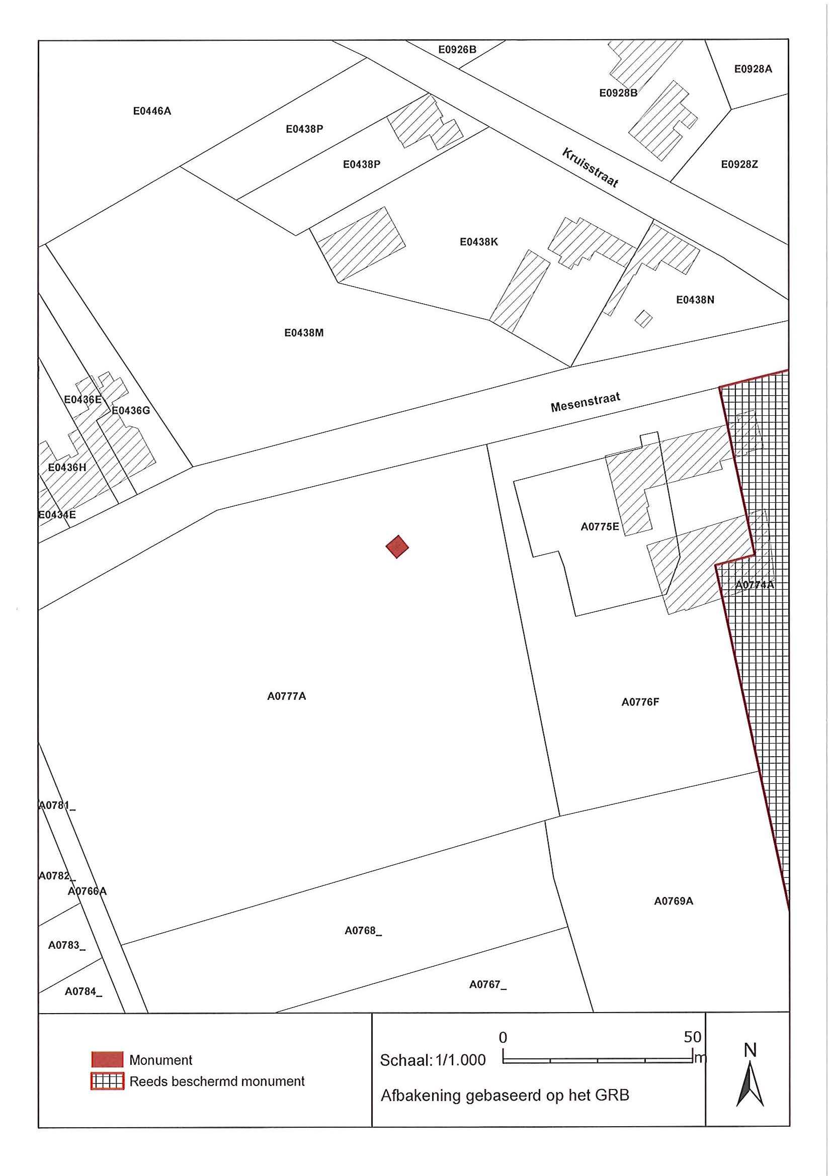
Duitse mitrailleurspost Moulin de l'Hospice

ID: 10665 URI : https://id.erfgoed.net/besluiten/10665

Voorlopige beschermingsbesluiten

Aanduidingstype Beschermd monument
Provincie West-Vlaanderen
Uitgevaardigd als Ministeriële besluiten
Ondertekend door Bourgeois, Geert
Datum ondertekening
Belgisch staatsblad Gepubliceerd op , jaargang 183, nummer 215
De digitale publicatie kan je vinden
Opmerkingen v625

Relaties

Wordt gevolgd door: Duitse mitrailleurspost Moulin de l'Hospice
Definitieve beschermingsbesluiten

Items opgenomen in dit besluit

De gegevens worden opgehaald


    Downloads

    Bestanden
    Alle bestanden downloaden
    Besluit
    20130605_17.pdf
    Plan
    20130605_17_plan_verso.jpg
    Plan
    20130605_17_plan_recto.jpg
    Metadata

    Beheerder besluit: Agentschap Onroerend Erfgoed