BESLUIT

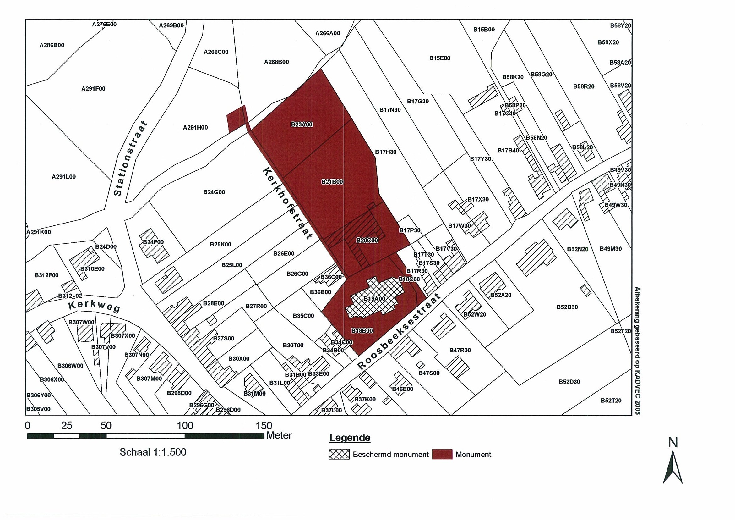
Pastorie met omgeving, kerkhof met omgeving en Sint-Luciakapel

ID: 10659 URI : https://id.erfgoed.net/besluiten/10659

Voorlopige beschermingsbesluiten

Aanduidingstype Beschermd monument
Provincie Vlaams-Brabant
Uitgevaardigd als Ministeriële besluiten
Ondertekend door Bourgeois, Geert
Datum ondertekening
Belgisch staatsblad Gepubliceerd op , jaargang 180, nummer 177
De digitale publicatie kan je vinden
Opmerkingen V152; te Boutersem (Vertrijk)

Relaties

Wordt gevolgd door: Pastorie met omgeving, kerkhof met omgeving en Sint-Luciakapel
Definitieve beschermingsbesluiten

Items opgenomen in dit besluit

De gegevens worden opgehaald


    Downloads

    Bestanden
    Alle bestanden downloaden
    Besluit
    20100421_7.pdf
    Plan
    20100421_7_plan_verso.jpg
    Plan
    20100421_7_plan_recto.jpg
    Metadata

    Beheerder besluit: Agentschap Onroerend Erfgoed