BESLUIT

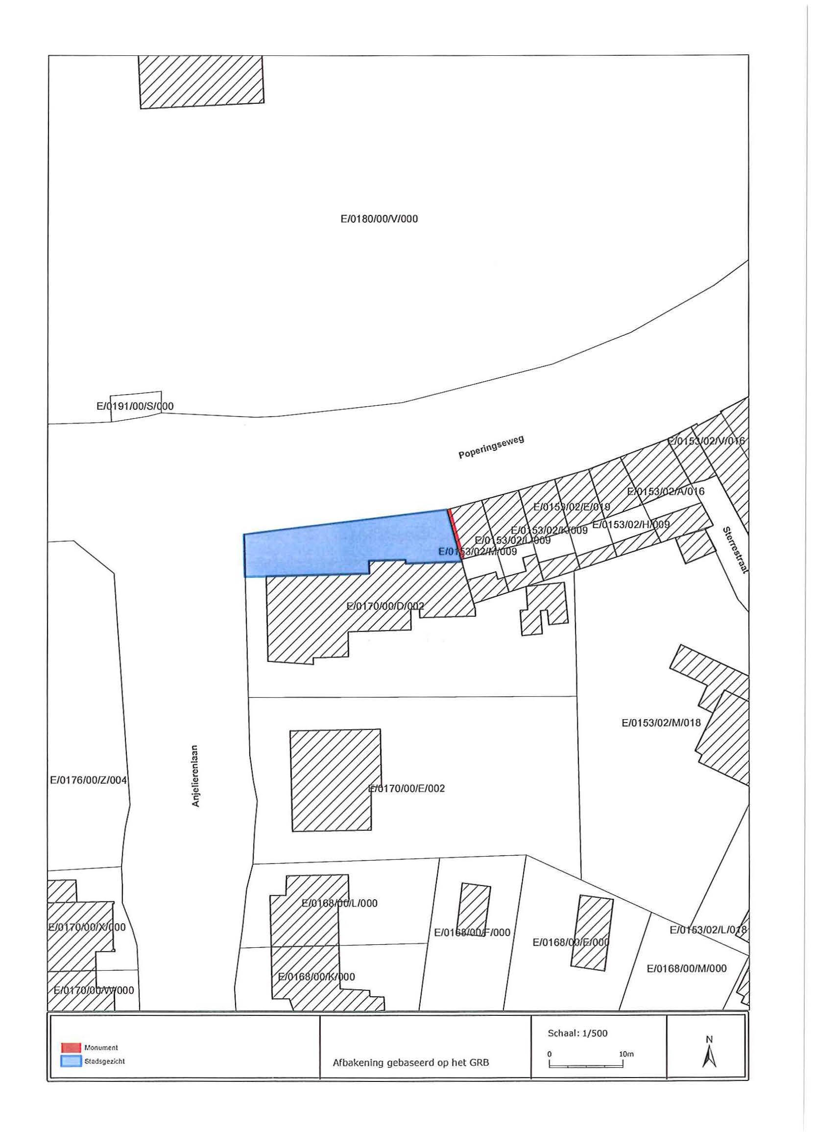
Reclamemuurschildering Haig House en voortuinstrook

ID: 10628 URI : https://id.erfgoed.net/besluiten/10628

Voorlopige beschermingsbesluiten

Aanduidingstype Beschermd monument, Beschermd stads- of dorpsgezicht, ondersteunend
Provincie West-Vlaanderen
Uitgevaardigd als Ministeriële besluiten
Ondertekend door Bourgeois, Geert
Datum ondertekening
Belgisch staatsblad Gepubliceerd op , jaargang 183, nummer 114
De digitale publicatie kan je vinden
Opmerkingen -

Relaties

Wordt gevolgd door: Reclamemuurschildering Haig House en voortuinstrook
Definitieve beschermingsbesluiten

Items opgenomen in dit besluit

De gegevens worden opgehaald


    Downloads

    Bestanden
    Alle bestanden downloaden
    Besluit
    20130321_1.pdf
    Plan
    20130321_1_plan_verso.jpg
    Plan
    20130321_1_plan_recto.jpg
    Metadata

    Beheerder besluit: Agentschap Onroerend Erfgoed