BESLUIT

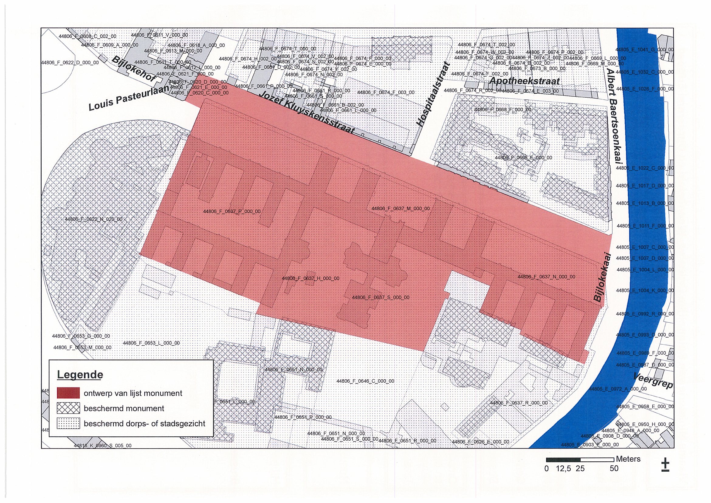
Burgerlijk hospitaal de Bijloke

ID: 10613 URI : https://id.erfgoed.net/besluiten/10613

Voorlopige beschermingsbesluiten

Aanduidingstype Beschermd monument
Provincie Oost-Vlaanderen
Uitgevaardigd als Ministeriële besluiten
Ondertekend door Bourgeois, Geert
Datum ondertekening
Belgisch staatsblad Gepubliceerd op , jaargang 179, nummer 347
De digitale publicatie kan je vinden
Opmerkingen V112; te Gent (Gent)

Relaties

Wordt gevolgd door: Burgerlijk hospitaal de Bijloke
Definitieve beschermingsbesluiten

Items opgenomen in dit besluit

De gegevens worden opgehaald


    Downloads

    Bestanden
    Alle bestanden downloaden
    Besluit
    20090918_14.pdf
    Plan
    20090918_14_plan_recto.jpg
    Plan
    20090918_14_plan_verso.jpg
    Metadata

    Beheerder besluit: Agentschap Onroerend Erfgoed