BESLUIT

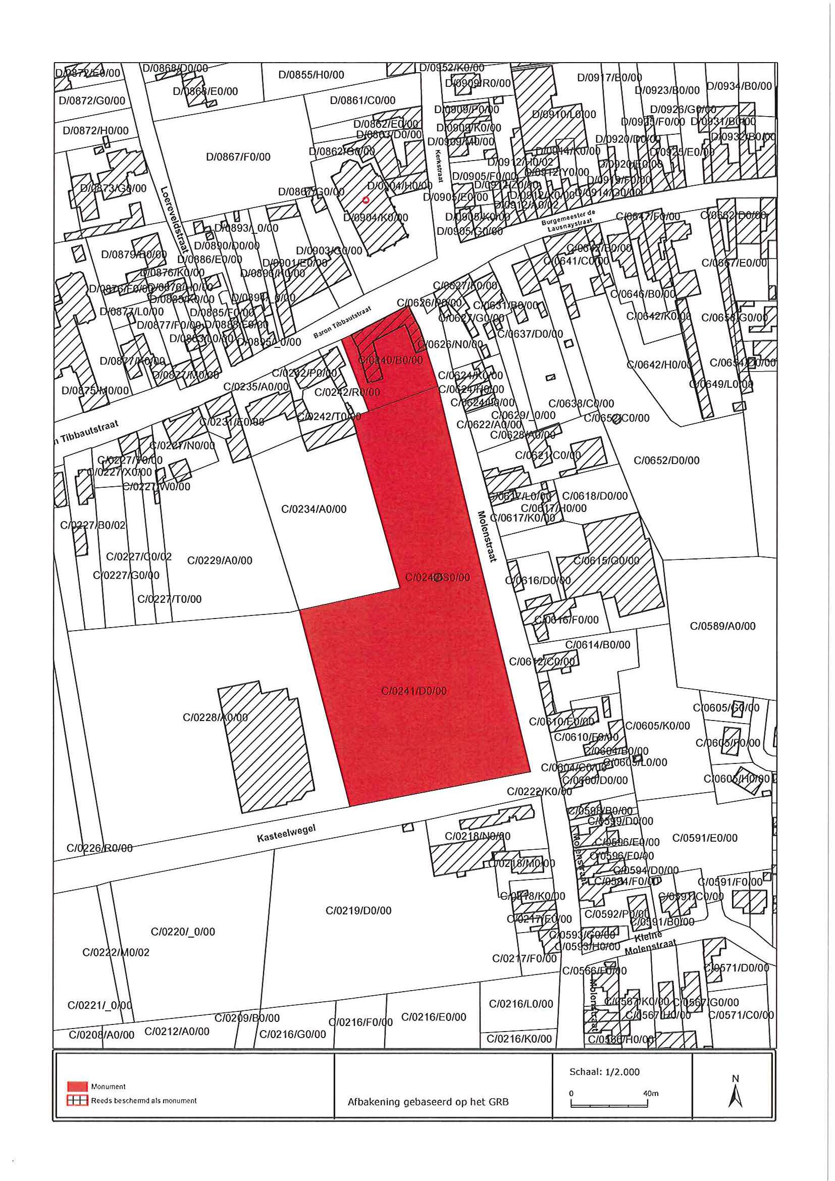
Groot Huys/Verviershuis met park en tuinpaviljoen

ID: 10596 URI : https://id.erfgoed.net/besluiten/10596

Voorlopige beschermingsbesluiten

Aanduidingstype Beschermd monument
Provincie Oost-Vlaanderen
Uitgevaardigd als Ministeriële besluiten
Ondertekend door Bourgeois, Geert
Datum ondertekening
Belgisch staatsblad Gepubliceerd op , jaargang 183, nummer 250
De digitale publicatie kan je vinden
Opmerkingen v650

Relaties

Wordt gevolgd door: Groot Huys/Verviershuis met park en tuinpaviljoen
Definitieve beschermingsbesluiten

Items opgenomen in dit besluit

De gegevens worden opgehaald


    Downloads

    Bestanden
    Alle bestanden downloaden
    Besluit
    20130717_11.pdf
    Plan
    20130717_11_plan_recto.jpg
    Plan
    20130717_11_plan_verso.jpg
    Metadata

    Beheerder besluit: Agentschap Onroerend Erfgoed