BESLUIT

Britse militaire begraafplaatsen

ID: 10548 URI : https://id.erfgoed.net/besluiten/10548

Voorlopige beschermingsbesluiten

Aanduidingstype Beschermd monument
Provincie West-Vlaanderen
Uitgevaardigd als Ministeriële besluiten
Ondertekend door Van Mechelen, Dirk
Datum ondertekening
Belgisch staatsblad Gepubliceerd op , jaargang 178, nummer 265
De digitale publicatie kan je vinden
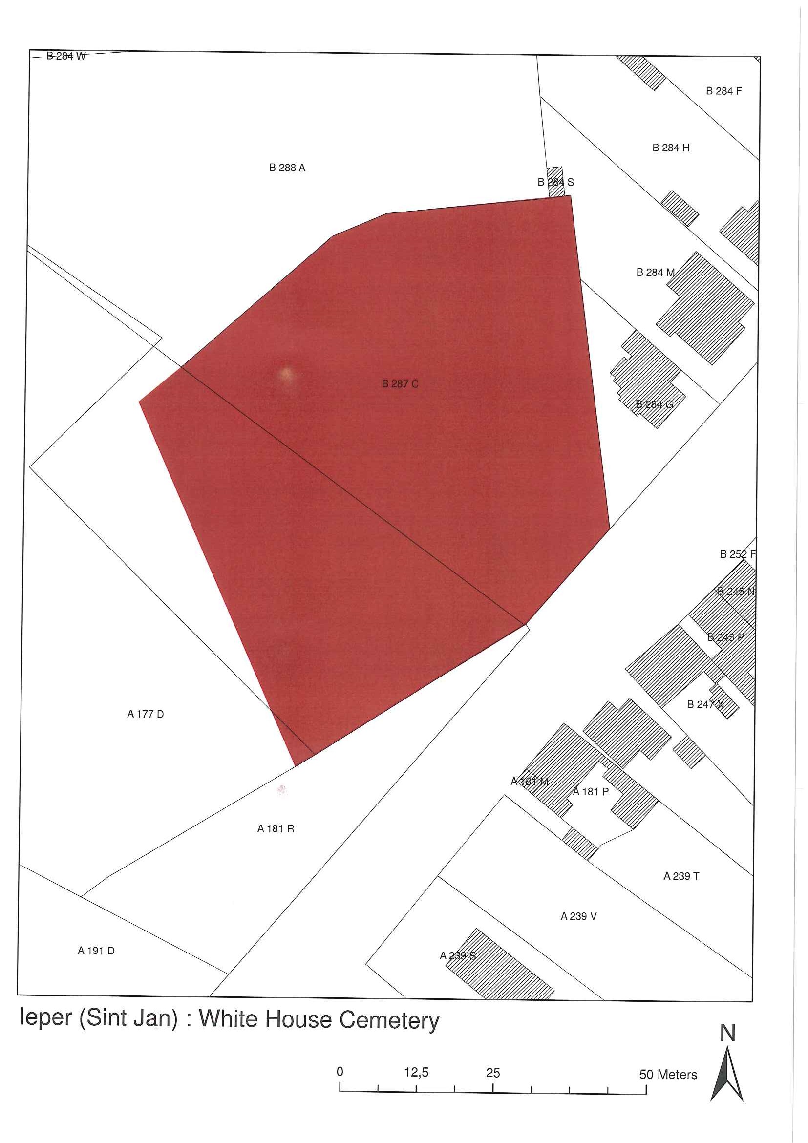
Opmerkingen te Ieper (Boezinge/Sint-Jan)

Relaties

Wordt gevolgd door: Britse militaire begraafplaatsen
Definitieve beschermingsbesluiten

Items opgenomen in dit besluit

De gegevens worden opgehaald


    Downloads

    Bestanden
    Alle bestanden downloaden
    Besluit
    20080317_1.pdf
    Plan
    20080317_1_plan_19_verso.jpg
    Plan
    20080317_1_plan_3_verso.jpg
    Plan
    20080317_1_plan_10_verso.jpg
    Plan
    20080317_1_plan_14_recto.jpg
    Plan
    20080317_1_plan_8_recto.jpg
    Plan
    20080317_1_plan_2_verso.jpg
    Plan
    20080317_1_plan_15_verso.jpg
    Plan
    20080317_1_plan_6_recto.jpg
    Plan
    20080317_1_plan_7_recto.jpg
    Plan
    20080317_1_plan_18_recto.jpg
    Plan
    20080317_1_plan_19_recto.jpg
    Plan
    20080317_1_plan_16_recto.jpg
    Plan
    20080317_1_plan_15_recto.jpg
    Plan
    20080317_1_plan_11_recto.jpg
    Plan
    20080317_1_plan_12_recto.jpg
    Plan
    20080317_1_plan_11_verso.jpg
    Plan
    20080317_1_plan_10_recto.jpg
    Plan
    20080317_1_plan_4_recto.jpg
    Plan
    20080317_1_plan_3_recto.jpg
    Plan
    20080317_1_plan_13_verso.jpg
    Plan
    20080317_1_plan_4_verso.jpg
    Plan
    20080317_1_plan_17_verso.jpg
    Plan
    20080317_1_plan_9_recto.jpg
    Plan
    20080317_1_plan_16_verso.jpg
    Plan
    20080317_1_plan_17_recto.jpg
    Plan
    20080317_1_plan_8_verso.jpg
    Plan
    20080317_1_plan_1_recto.jpg
    Plan
    20080317_1_plan_18_verso.jpg
    Plan
    20080317_1_plan_5_recto.jpg
    Plan
    20080317_1_plan_5_verso.jpg
    Plan
    20080317_1_plan_14_verso.jpg
    Plan
    20080317_1_plan_13_recto.jpg
    Plan
    20080317_1_plan_1_verso.jpg
    Plan
    20080317_1_plan_7_verso.jpg
    Plan
    20080317_1_plan_12_verso.jpg
    Plan
    20080317_1_plan_9_verso.jpg
    Plan
    20080317_1_plan_6_verso.jpg
    Plan
    20080317_1_plan_2_recto.jpg
    Metadata

    Beheerder besluit: Agentschap Onroerend Erfgoed