BESLUIT

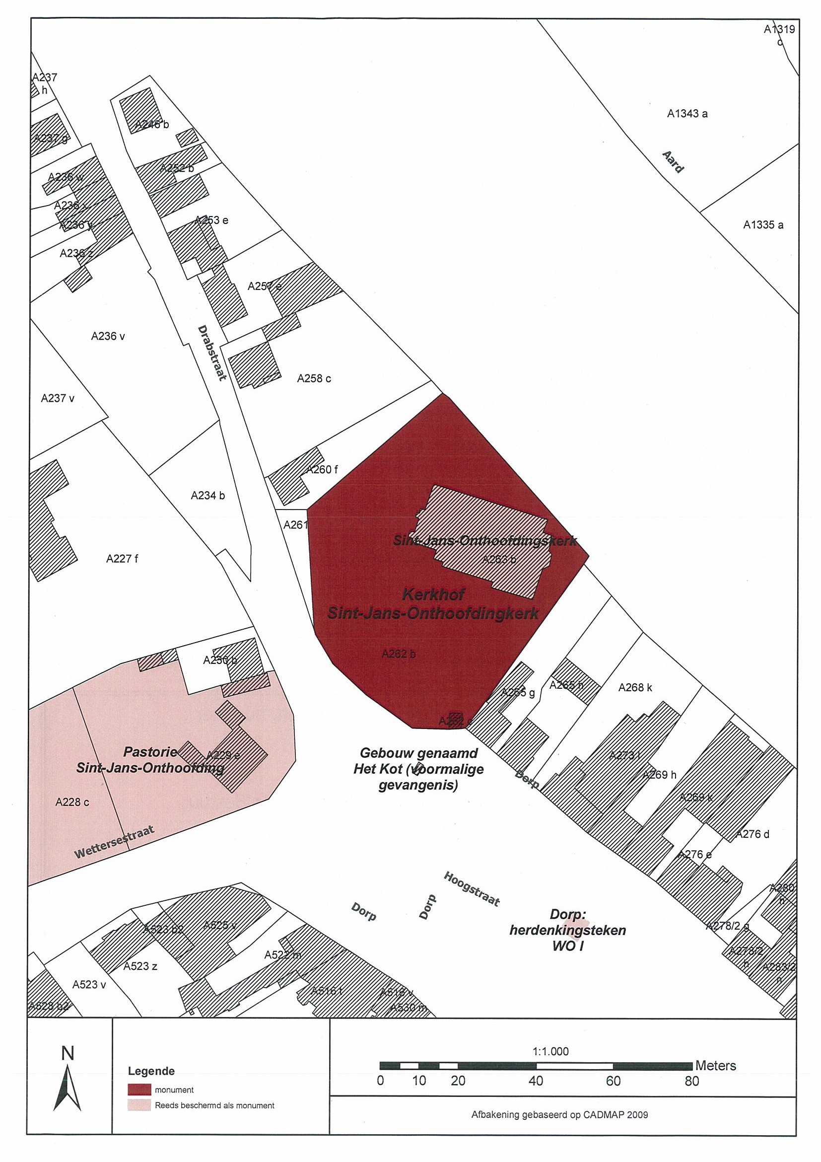
Parochiekerk Sint-Jan-Onthoofding: kerkhofsite

ID: 10527 URI : https://id.erfgoed.net/besluiten/10527

Voorlopige beschermingsbesluiten

Aanduidingstype Beschermd monument
Provincie Oost-Vlaanderen
Uitgevaardigd als Ministeriële besluiten
Ondertekend door Bourgeois, Geert
Datum ondertekening
Belgisch staatsblad Gepubliceerd op , jaargang 180, nummer 336
De digitale publicatie kan je vinden
Opmerkingen te Wichelen (Schellebelle)

Relaties

Wordt gevolgd door: Parochiekerk Sint-Jan-Onthoofding: kerkhofsite
Definitieve beschermingsbesluiten

Items opgenomen in dit besluit

De gegevens worden opgehaald


    Downloads

    Bestanden
    Alle bestanden downloaden
    Besluit
    20101020_9.pdf
    Plan
    20101020_9_plan_recto.jpg
    Plan
    20101020_9_plan_verso.jpg
    Metadata

    Beheerder besluit: Agentschap Onroerend Erfgoed