BESLUIT

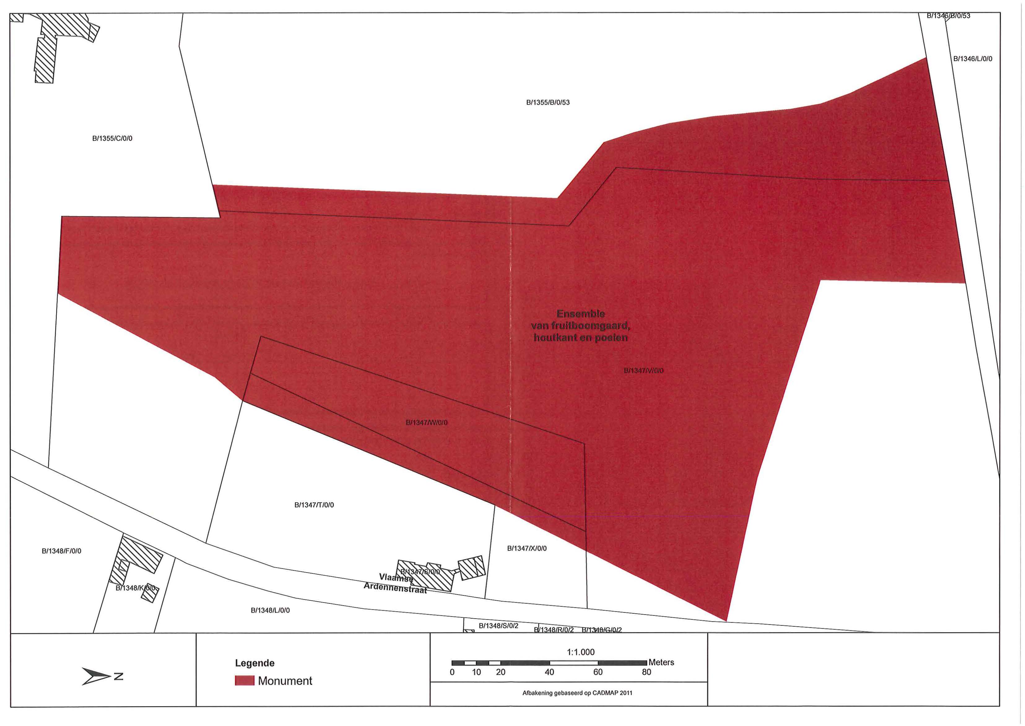
Ensemble van fruitboomgaard, houtkant en poelen

ID: 10498 URI : https://id.erfgoed.net/besluiten/10498

Voorlopige beschermingsbesluiten

Aanduidingstype Beschermd monument
Provincie Oost-Vlaanderen
Uitgevaardigd als Ministeriële besluiten
Ondertekend door Bourgeois, Geert
Datum ondertekening
Belgisch staatsblad Gepubliceerd op , jaargang 183, nummer 17
De digitale publicatie kan je vinden
Opmerkingen te Maarkedal (Etikhove)

Relaties

Wordt gevolgd door: Ensemble van fruitboomgaard, houtkant en poelen
Definitieve beschermingsbesluiten

Items opgenomen in dit besluit

De gegevens worden opgehaald


    Downloads

    Bestanden
    Alle bestanden downloaden
    Besluit
    20121203_7.pdf
    Plan
    20121203_7_plan_verso.jpg
    Plan
    20121203_7_plan_recto.jpg
    Metadata

    Beheerder besluit: Agentschap Onroerend Erfgoed