BESLUIT

Vrijheidsboom

ID: 10488 URI : https://id.erfgoed.net/besluiten/10488

Voorlopige beschermingsbesluiten

Aanduidingstype Beschermd monument
Provincie Oost-Vlaanderen
Uitgevaardigd als Ministeriële besluiten
Ondertekend door Bourgeois, Geert
Datum ondertekening
Belgisch staatsblad Gepubliceerd op , jaargang 183, nummer 17
De digitale publicatie kan je vinden
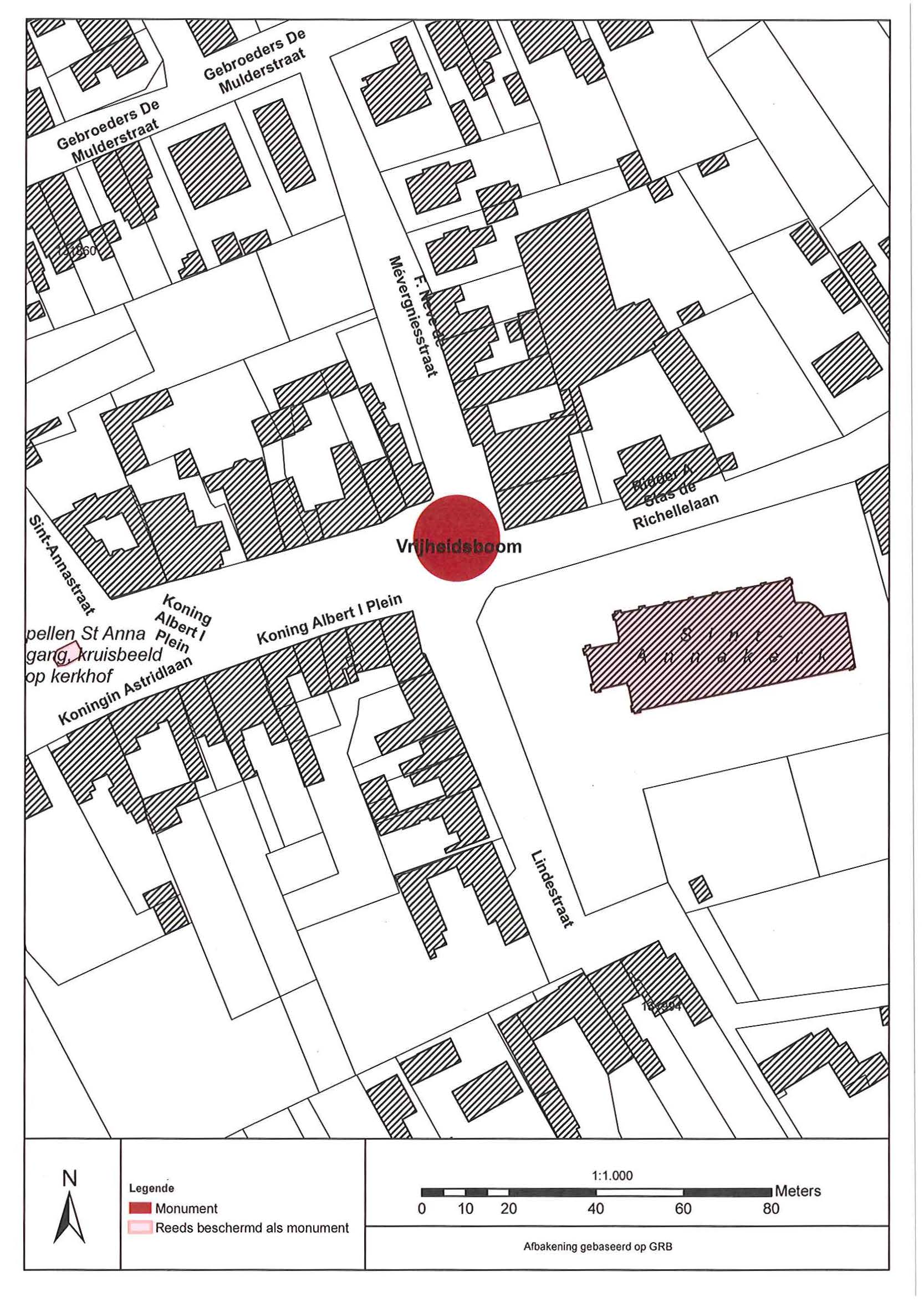
Opmerkingen met een cirkelvormige zone eromheen met een straal van 10 meter op het dorpsplein te Merelbeke (Bottelare)

Relaties

Wordt gevolgd door: Vrijheidsboom
Definitieve beschermingsbesluiten

Items opgenomen in dit besluit

De gegevens worden opgehaald


    Downloads

    Bestanden
    Alle bestanden downloaden
    Besluit
    20121203_8.pdf
    Plan
    20121203_8_plan_recto.jpg
    Plan
    20121203_8_plan_verso.jpg
    Metadata

    Beheerder besluit: Agentschap Onroerend Erfgoed