BESLUIT

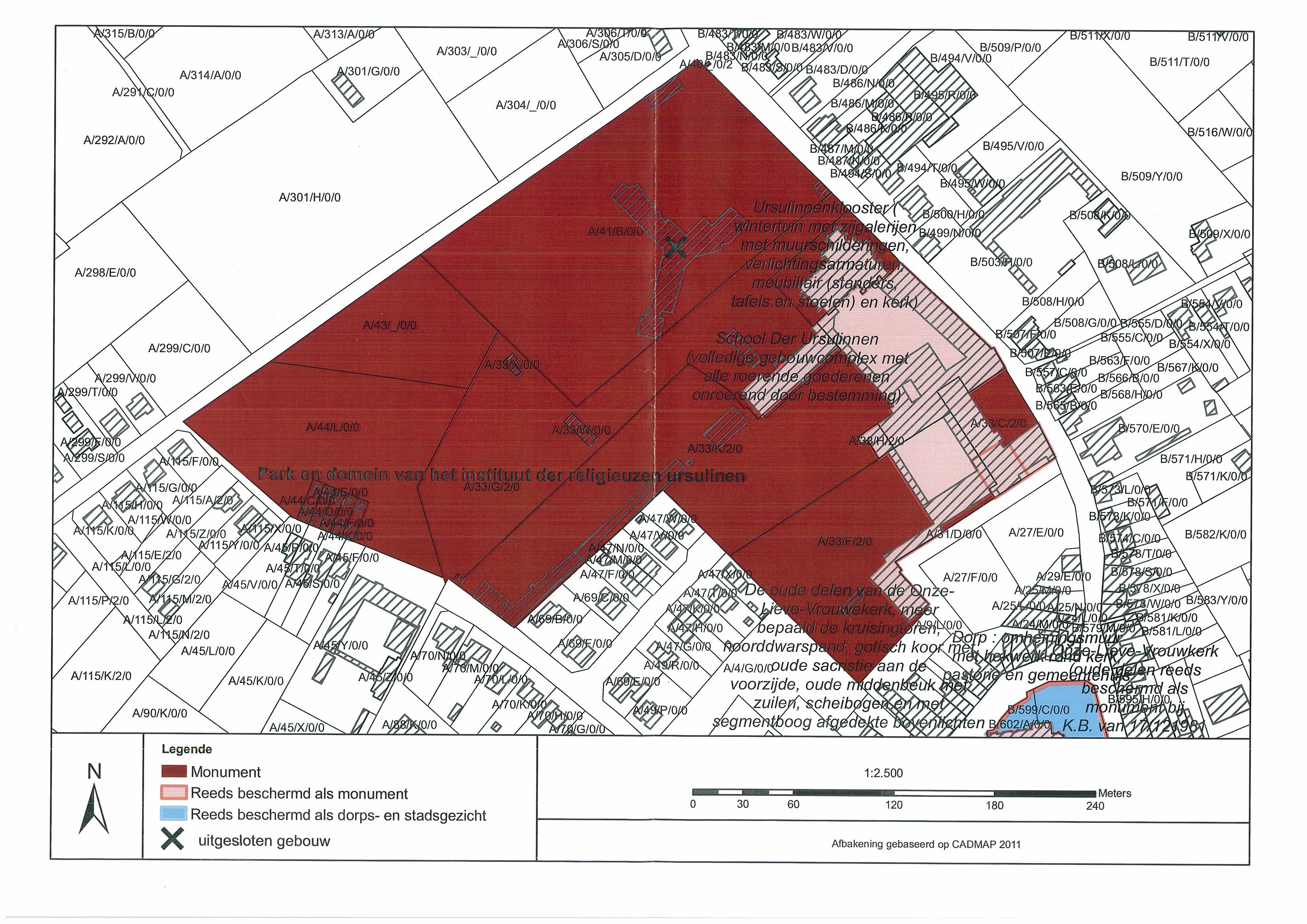
Instituut der religieuzen ursulinen: park en domein

ID: 10466 URI : https://id.erfgoed.net/besluiten/10466

Voorlopige beschermingsbesluiten

Aanduidingstype Beschermd monument
Provincie Antwerpen
Uitgevaardigd als Ministeriële besluiten
Ondertekend door Bourgeois, Geert
Datum ondertekening
Belgisch staatsblad Gepubliceerd op , jaargang 18, nummer 107
De digitale publicatie kan je vinden
Opmerkingen te Sint-Katelijne-Waver (Onze-Lieve-Vrouw-Waver)

Items opgenomen in dit besluit

De gegevens worden opgehaald


    Downloads

    Bestanden
    Alle bestanden downloaden
    Besluit
    20120206_1.pdf
    Plan
    20120206_1_plan_recto.jpg
    Plan
    20120206_1_plan_verso.jpg
    Metadata

    Beheerder besluit: Agentschap Onroerend Erfgoed