BESLUIT

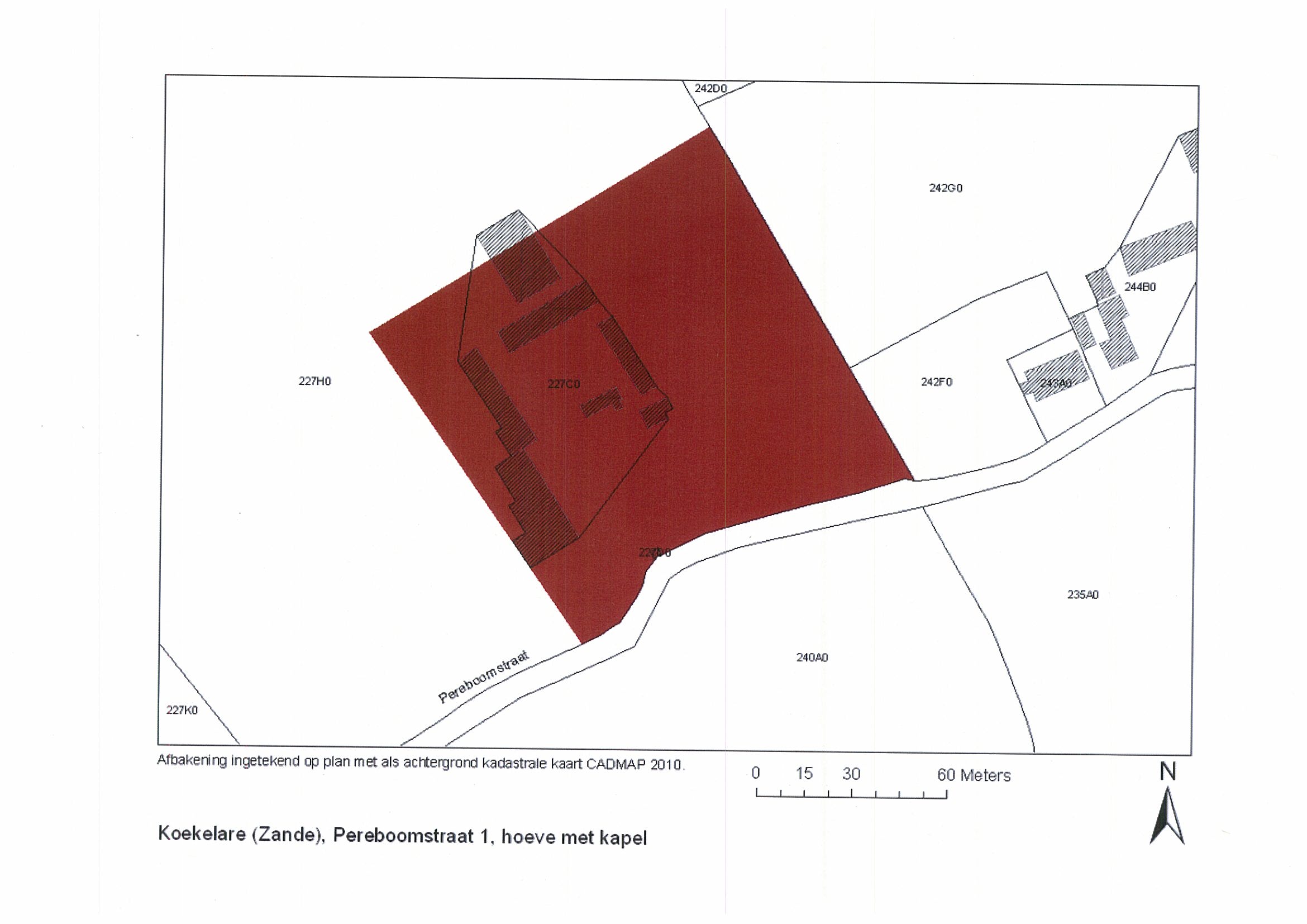
Hoeve met omgeving

ID: 10461 URI : https://id.erfgoed.net/besluiten/10461

Voorlopige beschermingsbesluiten

Aanduidingstype Beschermd monument
Provincie West-Vlaanderen
Uitgevaardigd als Ministeriële besluiten
Ondertekend door Bourgeois, Geert
Datum ondertekening
Belgisch staatsblad Gepubliceerd op , jaargang 181, nummer 185
De digitale publicatie kan je vinden
Opmerkingen V302; te Koekelare (Zande)

Relaties

Wordt gevolgd door: Hoeve met omgeving
Definitieve beschermingsbesluiten

Items opgenomen in dit besluit

De gegevens worden opgehaald


    Downloads

    Bestanden
    Alle bestanden downloaden
    Besluit
    20110530_5.pdf
    Plan
    20110530_5_plan_verso.jpg
    Plan
    20110530_5_plan_recto.jpg
    Metadata

    Beheerder besluit: Agentschap Onroerend Erfgoed