BESLUIT

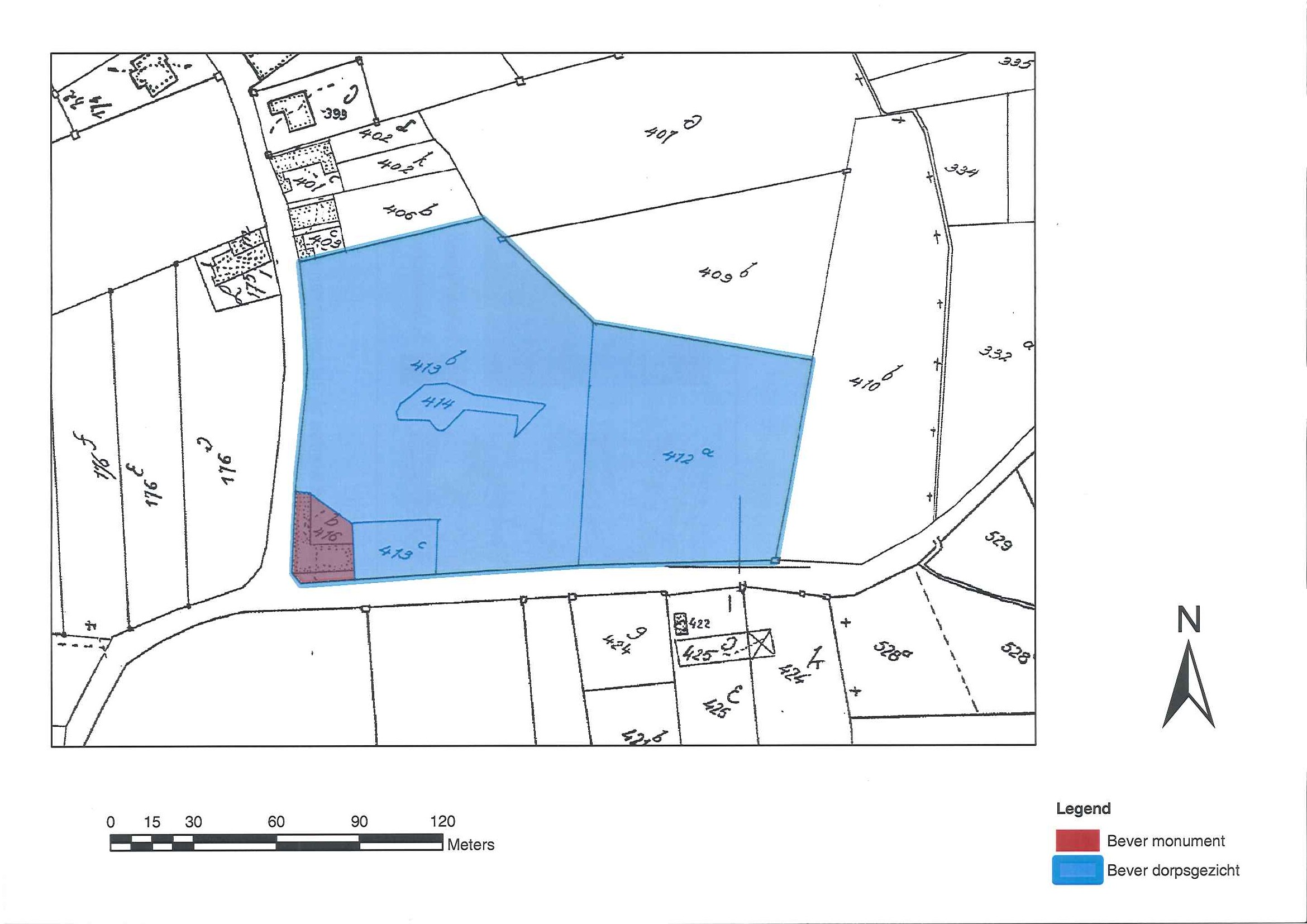
Hoeve Weverbergh met voortuintje, erf, wegkapelletje en omgeving

ID: 10444 URI : https://id.erfgoed.net/besluiten/10444

Voorlopige beschermingsbesluiten

Aanduidingstype Beschermd monument, Beschermd stads- of dorpsgezicht
Provincie Vlaams-Brabant
Uitgevaardigd als Ministeriële besluiten
Ondertekend door Van Mechelen, Dirk
Datum ondertekening
Belgisch staatsblad Gepubliceerd op , jaargang 176, nummer 361
De digitale publicatie kan je vinden
Opmerkingen te Bever (Bever)

Items opgenomen in dit besluit

De gegevens worden opgehaald


    Downloads

    Bestanden
    Alle bestanden downloaden
    Besluit
    20060728_4.pdf
    Plan
    20060728_4_plan_verso.jpg
    Plan
    20060728_4_plan_recto.jpg
    Metadata

    Beheerder besluit: Agentschap Onroerend Erfgoed