BESLUIT

Woningen ontworpen door Willy Van Der Meeren

ID: 10382 URI : https://id.erfgoed.net/besluiten/10382

Voorlopige beschermingsbesluiten

Aanduidingstype Beschermd monument
Provincie Vlaams-Brabant
Uitgevaardigd als Ministeriële besluiten
Ondertekend door Van Mechelen, Dirk
Datum ondertekening
Belgisch staatsblad Gepubliceerd op , jaargang 178, nummer 349
De digitale publicatie kan je vinden
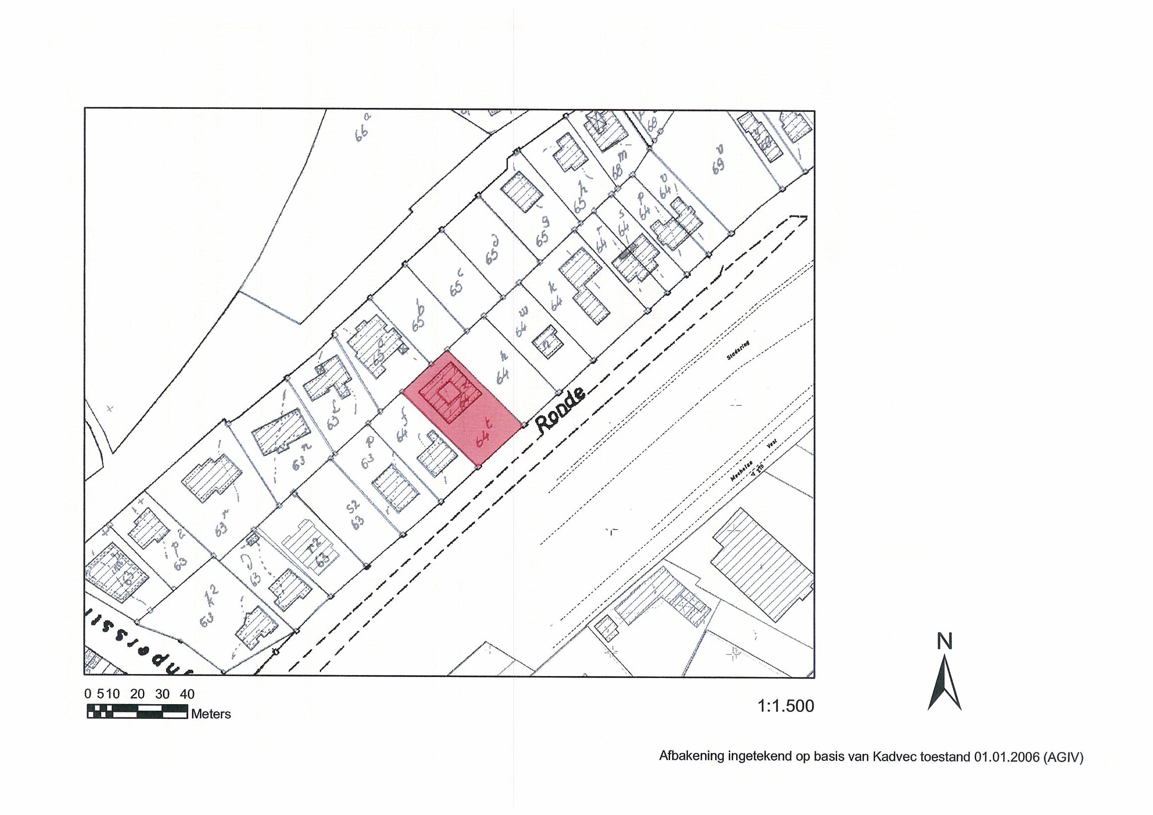
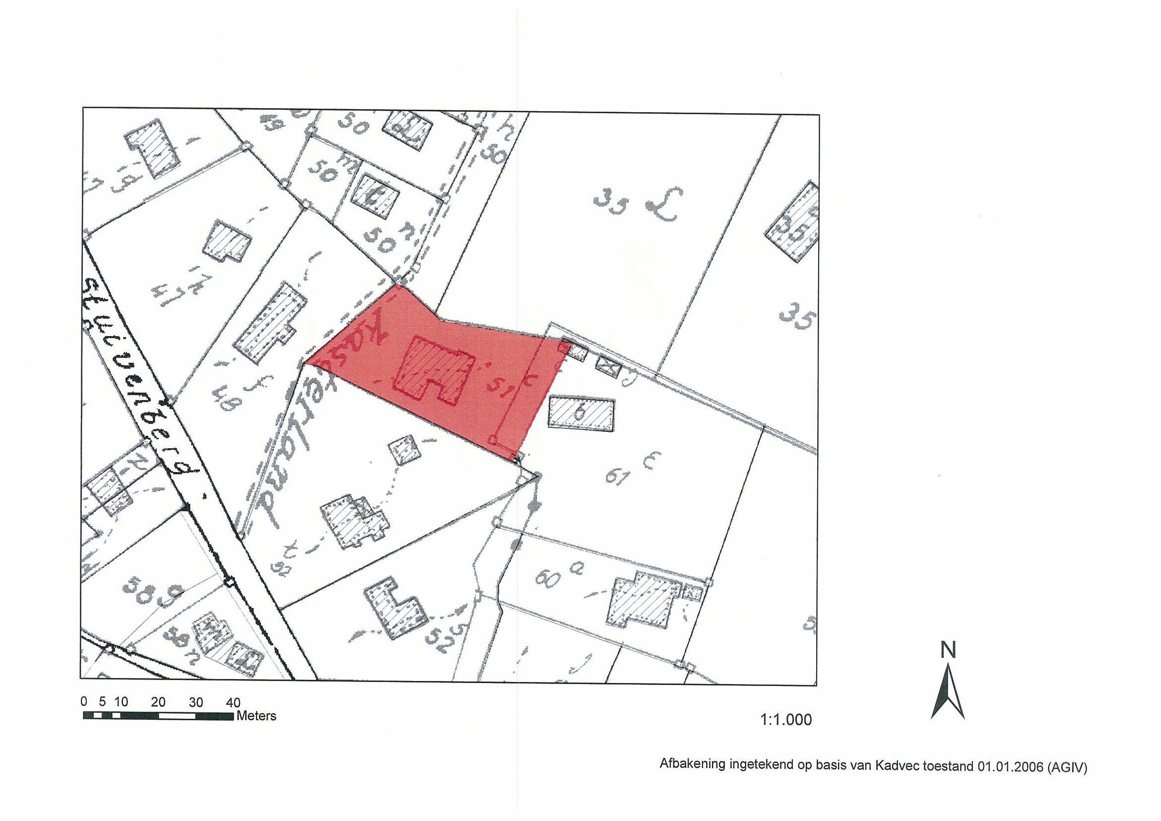
Opmerkingen te Aarschot/Keerbergen/Lennik/Leuven

Relaties

Wordt gevolgd door: Woningen ontworpen door Willy Van Der Meeren
Definitieve beschermingsbesluiten

Items opgenomen in dit besluit

De gegevens worden opgehaald


    Downloads

    Bestanden
    Alle bestanden downloaden
    Besluit
    20080914_17.pdf
    Plan
    20080914_17_plan_3_verso.jpg
    Plan
    20080914_17_plan_3_recto.jpg
    Plan
    20080914_17_plan_4_verso.jpg
    Plan
    20080914_17_plan_4_recto.jpg
    Plan
    20080914_17_plan_1_verso.jpg
    Plan
    20080914_17_plan_2_verso.jpg
    Plan
    20080914_17_plan_1_recto.jpg
    Plan
    20080914_17_plan_2_recto.jpg
    Metadata

    Beheerder besluit: Agentschap Onroerend Erfgoed