BESLUIT

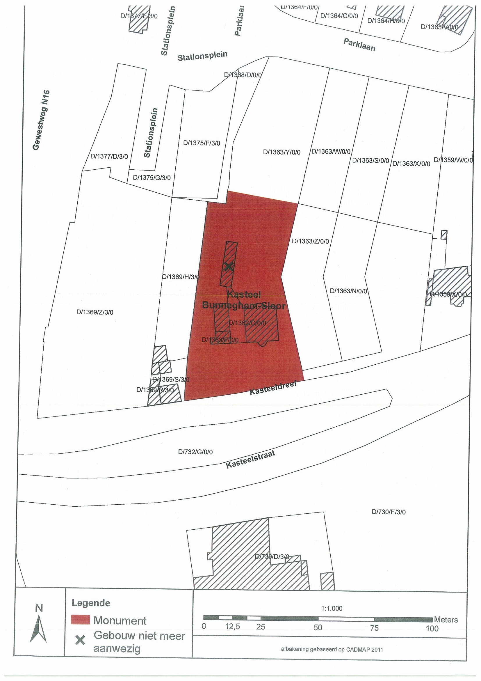
Kasteel Bunneghem-Sloor

ID: 10358 URI : https://id.erfgoed.net/besluiten/10358

Voorlopige beschermingsbesluiten

Aanduidingstype Beschermd monument
Provincie Oost-Vlaanderen
Uitgevaardigd als Ministeriële besluiten
Ondertekend door Bourgeois, Geert
Datum ondertekening
Belgisch staatsblad Gepubliceerd op , jaargang 182, nummer 18
De digitale publicatie kan je vinden
Opmerkingen te Temse (Temse)

Relaties

Wordt gevolgd door: Kasteel Bunneghem-Sloor
Definitieve beschermingsbesluiten

Items opgenomen in dit besluit

De gegevens worden opgehaald


    Downloads

    Bestanden
    Alle bestanden downloaden
    Besluit
    20111205_1.pdf
    Plan
    20111205_1_plan_verso.jpg
    Plan
    20111205_1_plan_recto.jpg
    Metadata

    Beheerder besluit: Agentschap Onroerend Erfgoed