BESLUIT

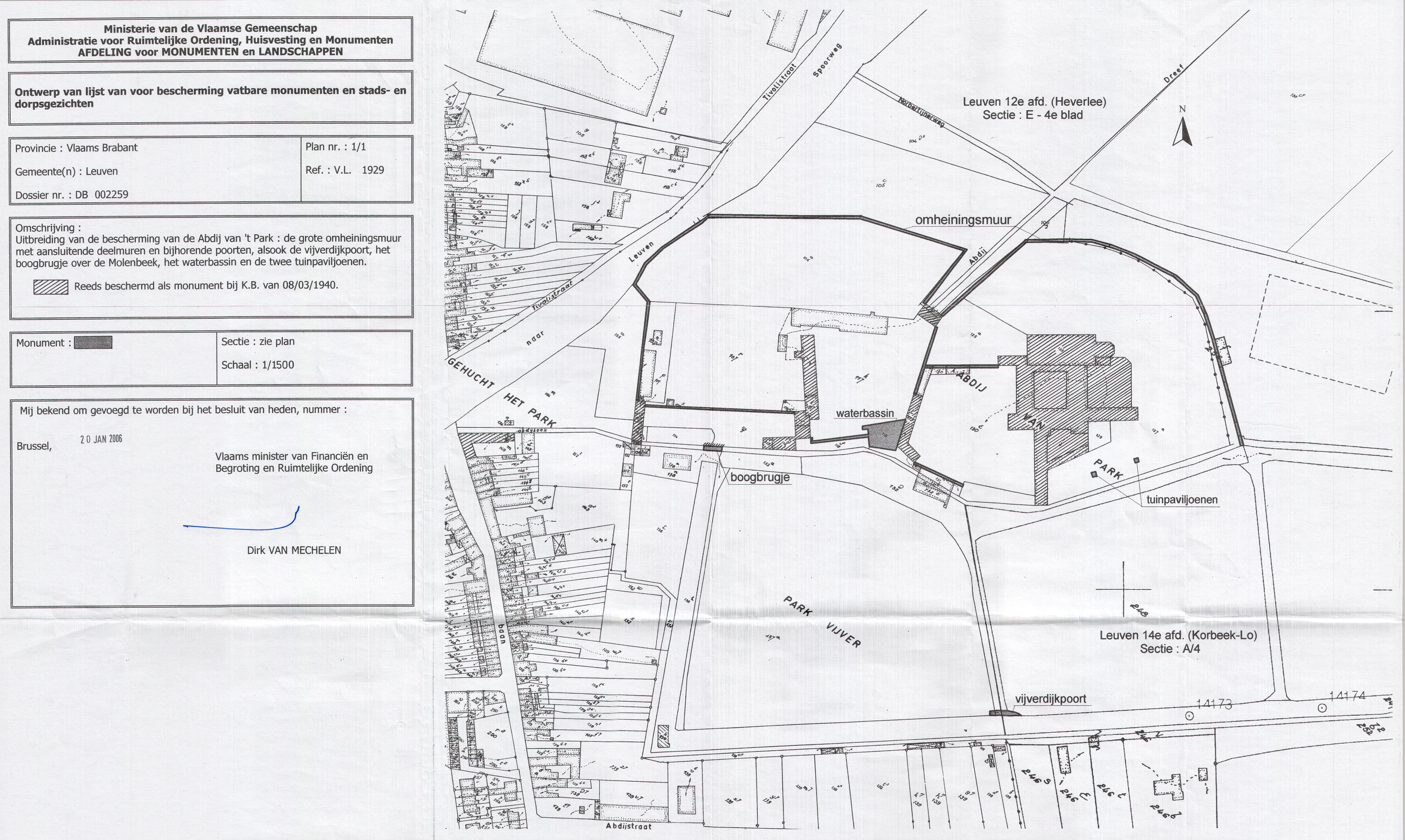
Abdij van Park

ID: 10297 URI : https://id.erfgoed.net/besluiten/10297

Voorlopige beschermingsbesluiten

Aanduidingstype Beschermd monument
Provincie Vlaams-Brabant
Uitgevaardigd als Ministeriële besluiten
Ondertekend door Van Mechelen, Dirk
Datum ondertekening
Belgisch staatsblad Gepubliceerd op , jaargang 176, nummer 138
De digitale publicatie kan je vinden
Opmerkingen uitbreiding van bescherming; te Leuven (Heverlee/Korbeek-Lo)

Relaties

Wordt gevolgd door: Abdij van Park
Definitieve beschermingsbesluiten

Items opgenomen in dit besluit

De gegevens worden opgehaald


    Downloads

    Bestanden
    Alle bestanden downloaden
    Besluit
    20060120_5.pdf
    Plan
    20060120_5_plan.jpg
    Metadata

    Beheerder besluit: Agentschap Onroerend Erfgoed