BESLUIT

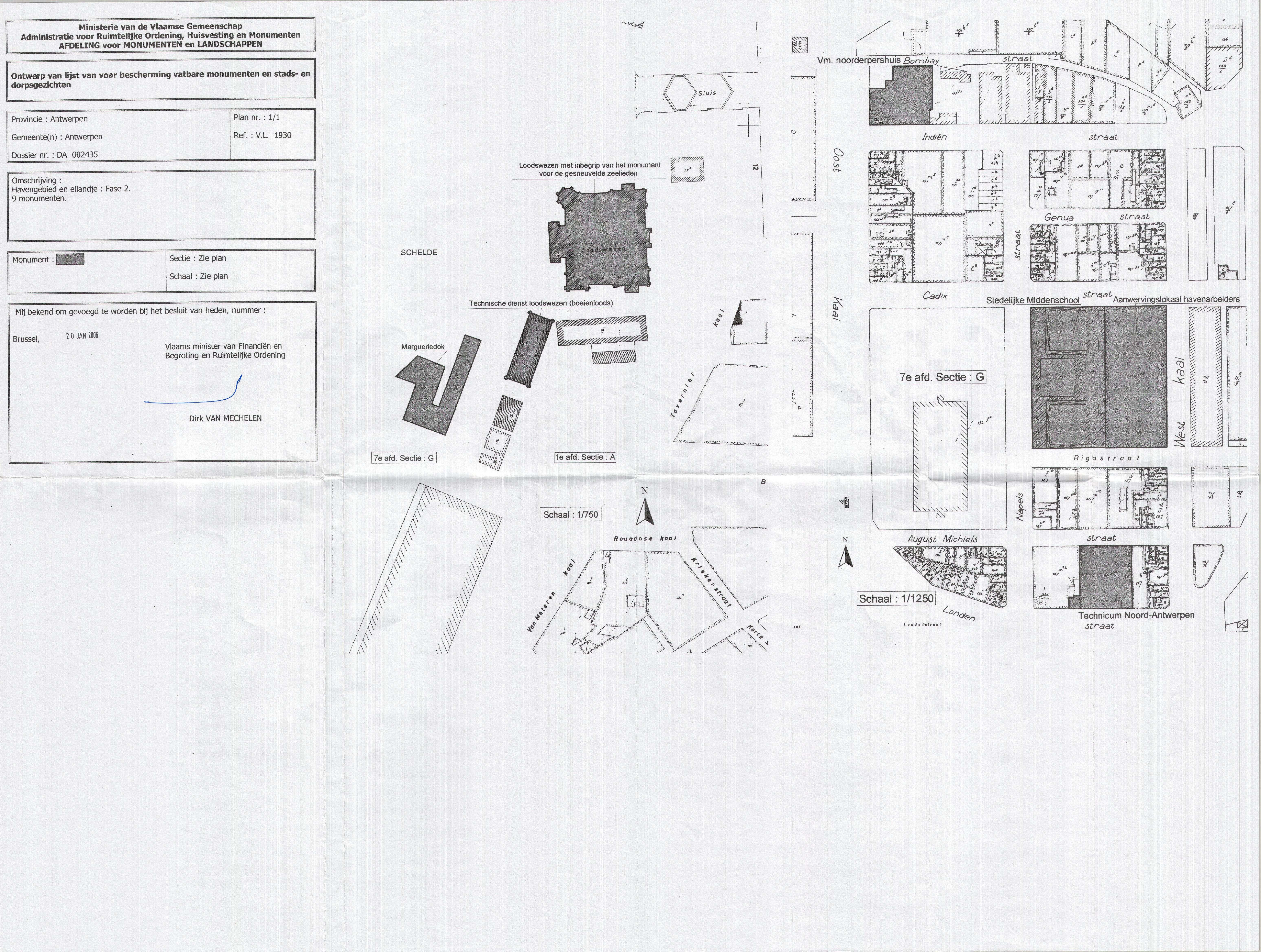
Geografisch pakket havengebied en eilandje: fase II

ID: 10295 URI : https://id.erfgoed.net/besluiten/10295

Voorlopige beschermingsbesluiten

Aanduidingstype Beschermd monument
Provincie Antwerpen
Uitgevaardigd als Ministeriële besluiten
Ondertekend door Van Mechelen, Dirk
Datum ondertekening
Belgisch staatsblad Gepubliceerd op , jaargang 176, nummer 138
De digitale publicatie kan je vinden
Opmerkingen te Antwerpen (Antwerpen)

Relaties

Wordt gevolgd door: Geografisch pakket havengebied en eilandje: fase II
Definitieve beschermingsbesluiten

Items opgenomen in dit besluit

De gegevens worden opgehaald


    Downloads

    Bestanden
    Alle bestanden downloaden
    Besluit
    20060120_1.pdf
    Plan
    20060120_1_plan.jpg
    Metadata

    Beheerder besluit: Agentschap Onroerend Erfgoed