BESLUIT

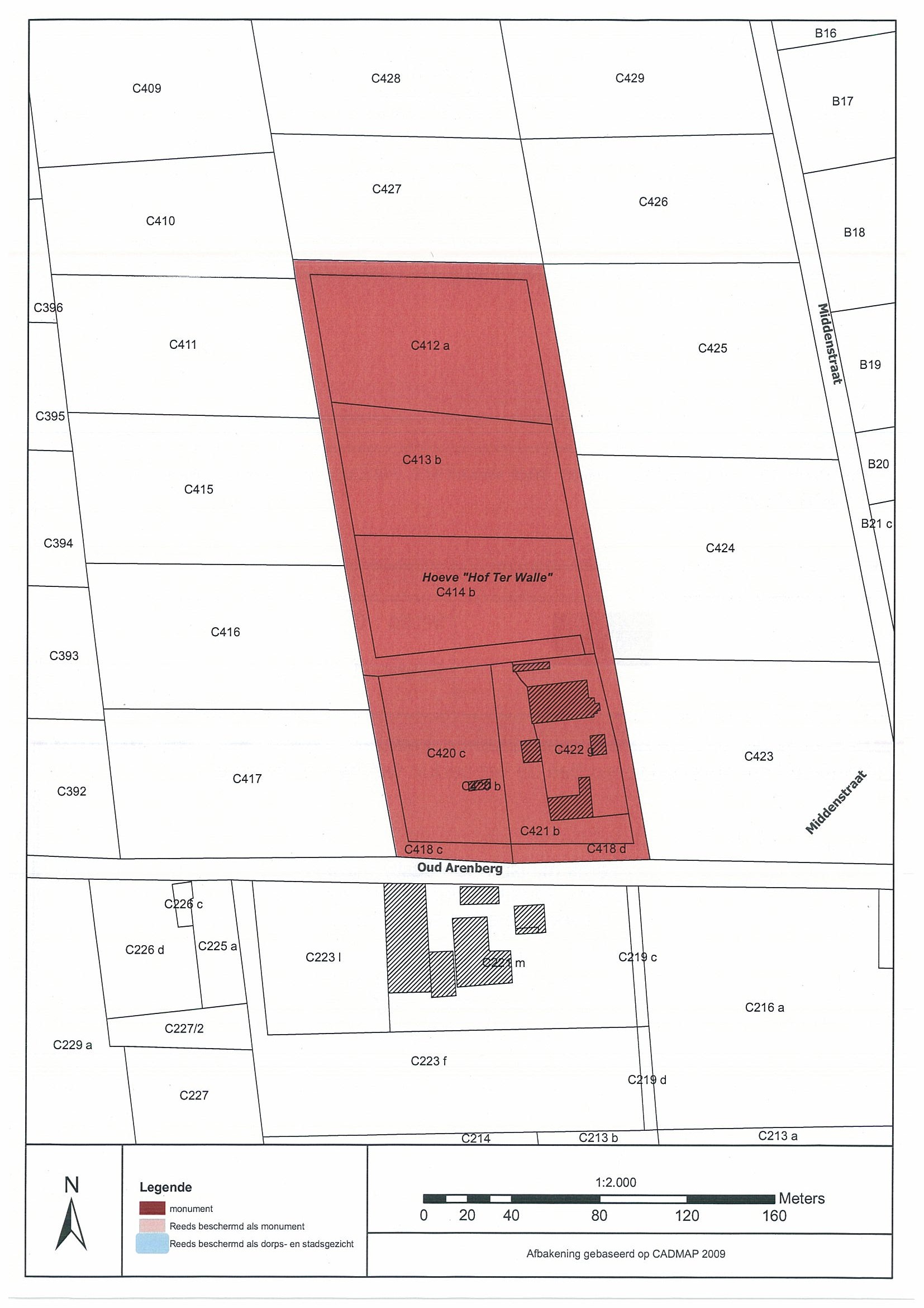
Hof ter Walle

ID: 10244 URI : https://id.erfgoed.net/besluiten/10244

Voorlopige beschermingsbesluiten

Aanduidingstype Beschermd monument
Provincie Oost-Vlaanderen
Uitgevaardigd als Ministeriële besluiten
Ondertekend door Bourgeois, Geert
Datum ondertekening
Belgisch staatsblad Gepubliceerd op , jaargang 180, nummer 177
De digitale publicatie kan je vinden
Opmerkingen V154; te Beveren (Kieldrecht)

Relaties

Wordt gevolgd door: Hof ter Walle
Definitieve beschermingsbesluiten

Items opgenomen in dit besluit

De gegevens worden opgehaald


    Downloads

    Bestanden
    Alle bestanden downloaden
    Besluit
    20100521_2.pdf
    Plan
    20100521_2_plan_verso.jpg
    Plan
    20100521_2_plan_recto.jpg
    Metadata

    Beheerder besluit: Agentschap Onroerend Erfgoed