BESLUIT

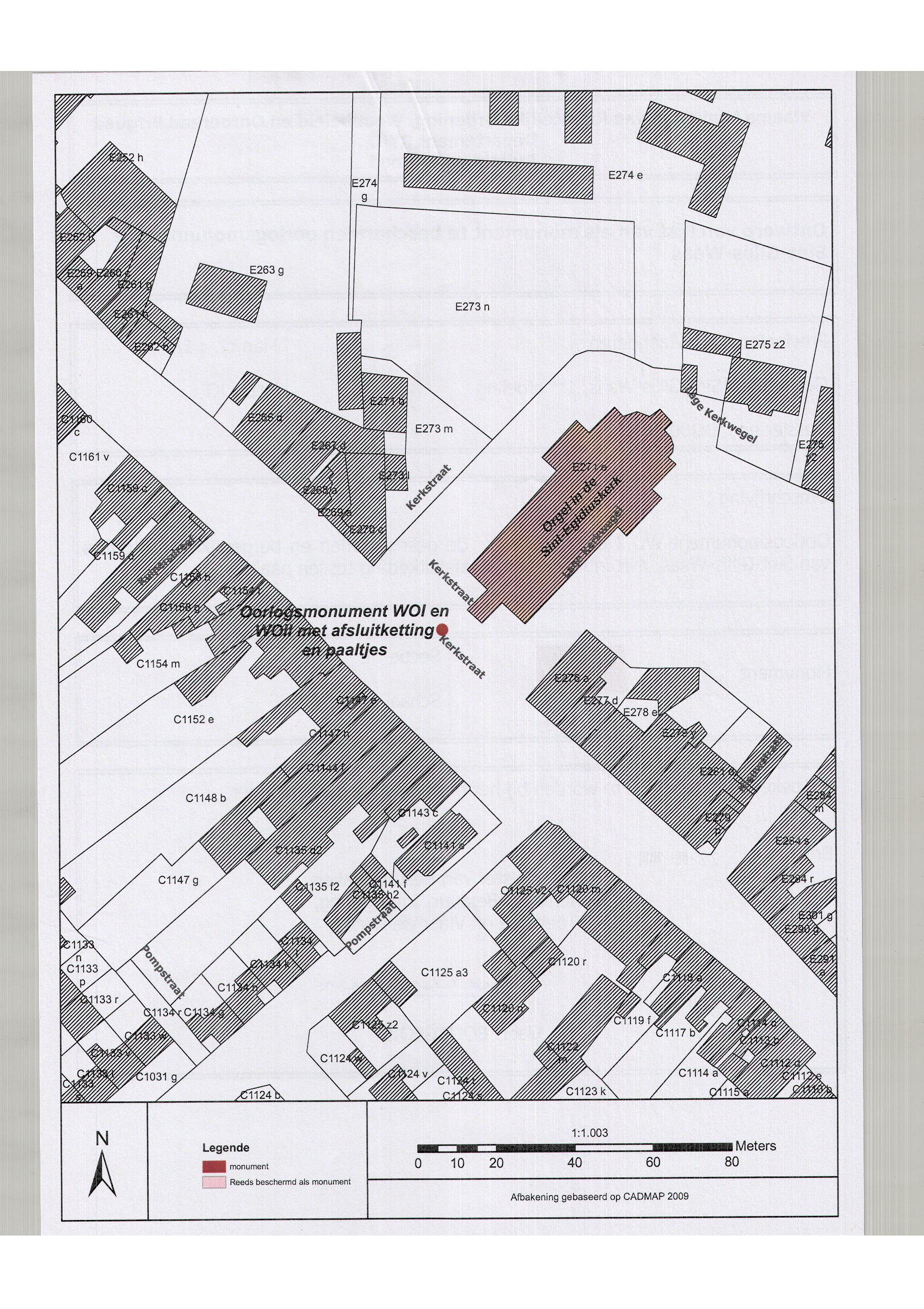
Oorlogsmonument

ID: 10209 URI : https://id.erfgoed.net/besluiten/10209

Voorlopige beschermingsbesluiten

Aanduidingstype Beschermd monument
Provincie Oost-Vlaanderen
Uitgevaardigd als Ministeriële besluiten
Ondertekend door Bourgeois, Geert
Datum ondertekening
Belgisch staatsblad Gepubliceerd op , jaargang 180, nummer 313
De digitale publicatie kan je vinden
Opmerkingen te Sint-Gillis-Waas (Sint-Gillis-Waas)

Relaties

Wordt gevolgd door: Oorlogsmonument
Definitieve beschermingsbesluiten

Items opgenomen in dit besluit

De gegevens worden opgehaald


    Downloads

    Bestanden
    Alle bestanden downloaden
    Besluit
    20100927_29.pdf
    Plan
    20100927_29_plan_recto.jpg
    Plan
    20100927_29_plan_verso.jpg
    Metadata

    Beheerder besluit: Agentschap Onroerend Erfgoed