BESLUIT

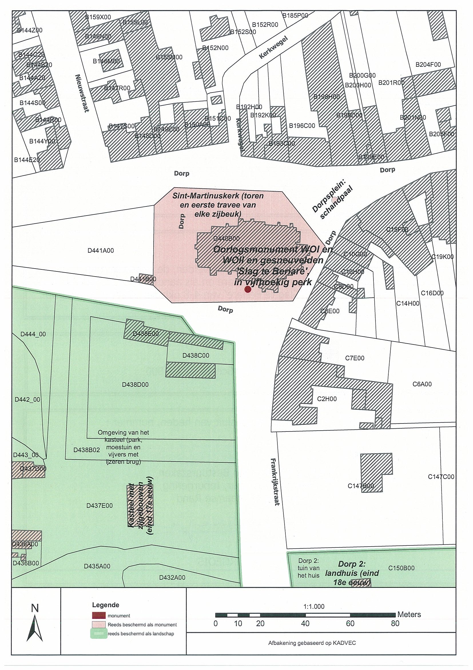
Oorlogsmonument

ID: 10202 URI : https://id.erfgoed.net/besluiten/10202

Voorlopige beschermingsbesluiten

Aanduidingstype Beschermd monument
Provincie Oost-Vlaanderen
Uitgevaardigd als Ministeriële besluiten
Ondertekend door Bourgeois, Geert
Datum ondertekening
Belgisch staatsblad Gepubliceerd op , jaargang 180, nummer 313
De digitale publicatie kan je vinden
Opmerkingen met perk te Berlare (Berlare)

Relaties

Wordt gevolgd door: Oorlogsmonument
Definitieve beschermingsbesluiten

Items opgenomen in dit besluit

De gegevens worden opgehaald


    Downloads

    Bestanden
    Alle bestanden downloaden
    Besluit
    20100927_6.pdf
    Plan
    20100927_6_plan_verso.jpg
    Plan
    20100927_6_plan_recto.jpg
    Metadata

    Beheerder besluit: Agentschap Onroerend Erfgoed