BESLUIT

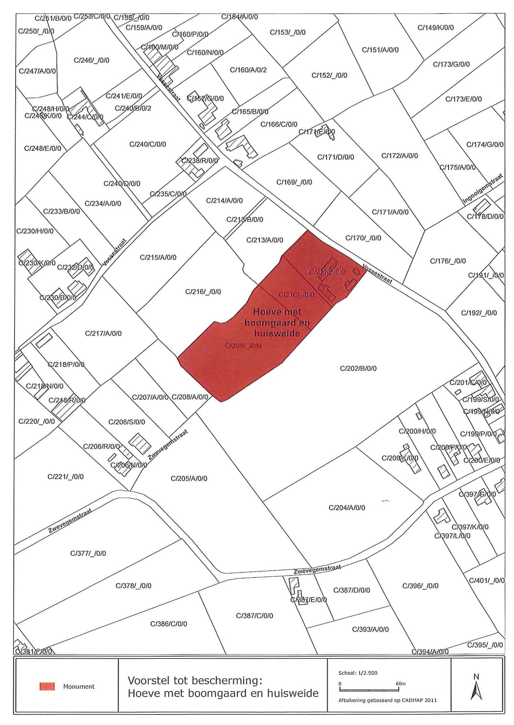
Hoevesite

ID: 10172 URI : https://id.erfgoed.net/besluiten/10172

Voorlopige beschermingsbesluiten

Aanduidingstype Beschermd monument
Provincie West-Vlaanderen
Uitgevaardigd als Ministeriële besluiten
Ondertekend door Bourgeois, Geert
Datum ondertekening
Belgisch staatsblad Gepubliceerd op , jaargang 182, nummer 258
De digitale publicatie kan je vinden
Opmerkingen in de Vossestraat te Anzegem (Ingooigem)

Items opgenomen in dit besluit

De gegevens worden opgehaald


    Downloads

    Bestanden
    Alle bestanden downloaden
    Besluit
    20120706_1.pdf
    Plan
    20120706_1_plan_verso.jpg
    Plan
    20120706_1_plan_recto.jpg
    Metadata

    Beheerder besluit: Agentschap Onroerend Erfgoed