BESLUIT

Hoeven en omgeving

ID: 10163 URI : https://id.erfgoed.net/besluiten/10163

Voorlopige beschermingsbesluiten

Aanduidingstype Beschermd monument, Beschermd stads- of dorpsgezicht
Provincie Vlaams-Brabant, Oost-Vlaanderen
Uitgevaardigd als Ministeriële besluiten
Ondertekend door Van Mechelen, Dirk
Datum ondertekening
Belgisch staatsblad Gepubliceerd op , jaargang 178, nummer 265
De digitale publicatie kan je vinden
Opmerkingen te Gooik/Galmaarden/Ninove

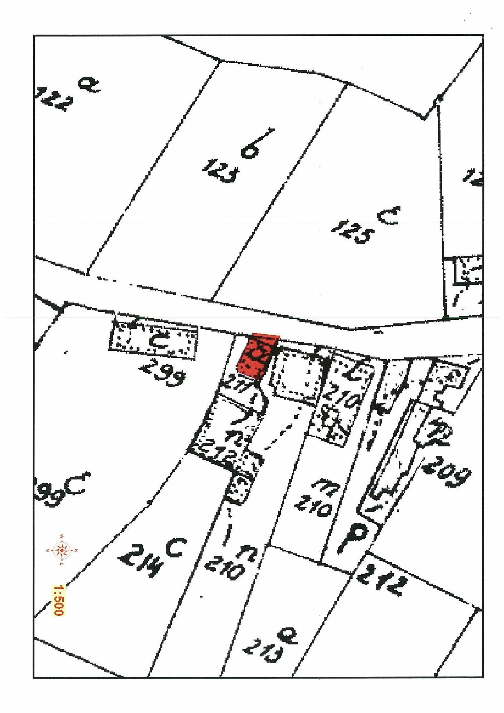
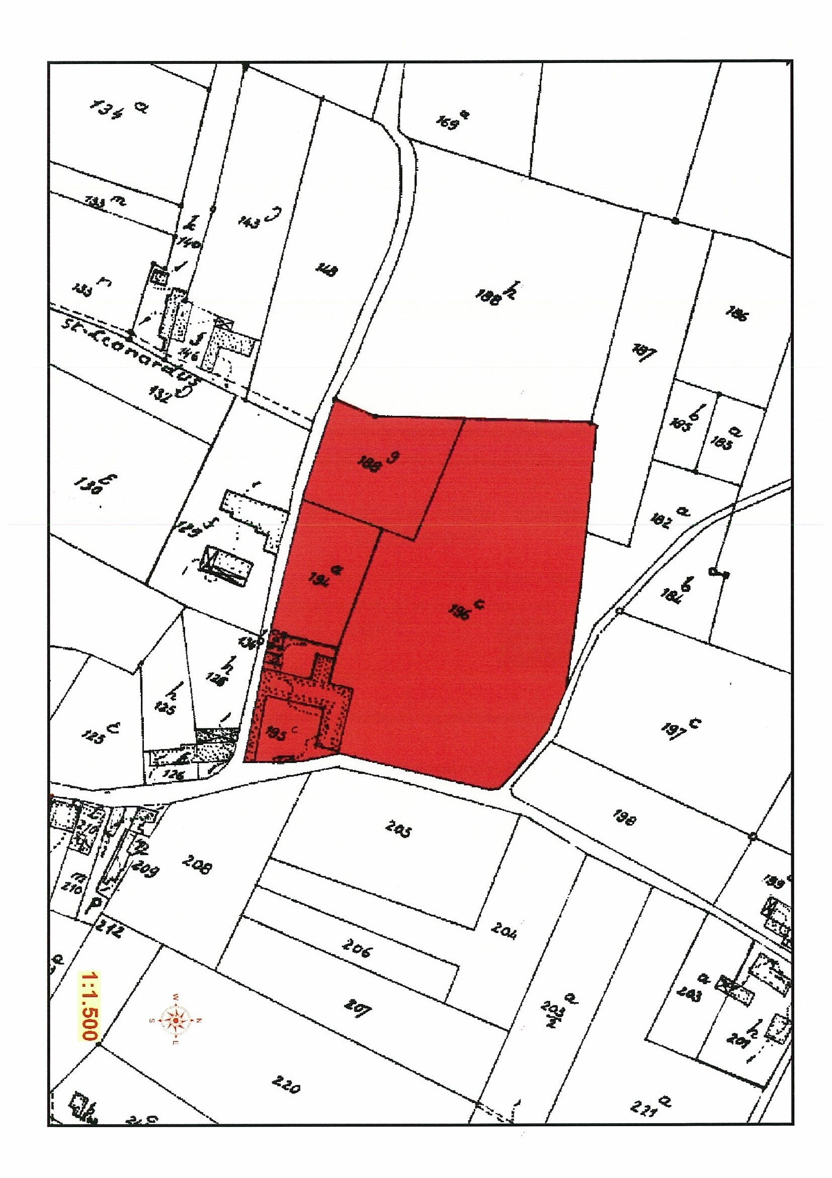
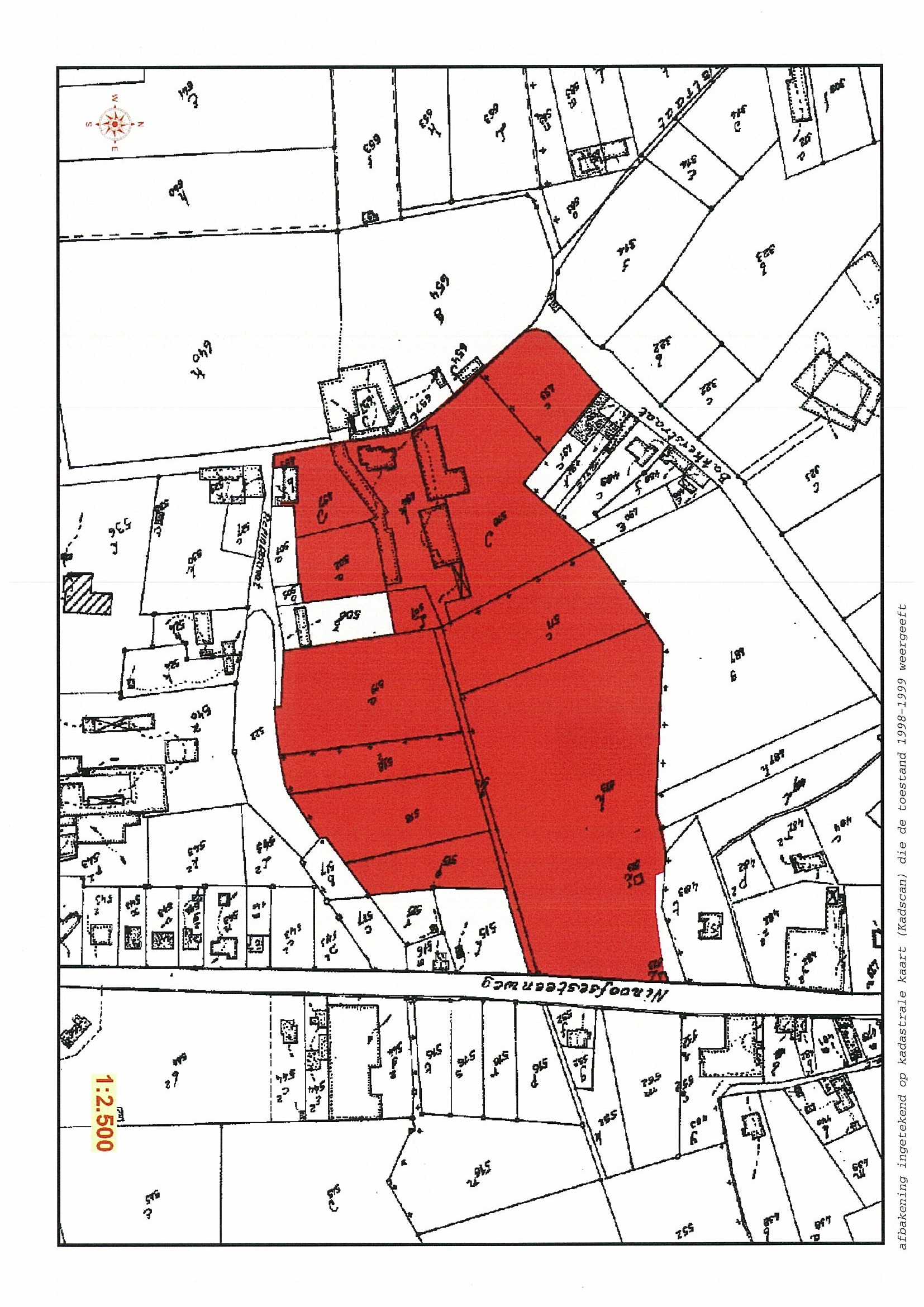
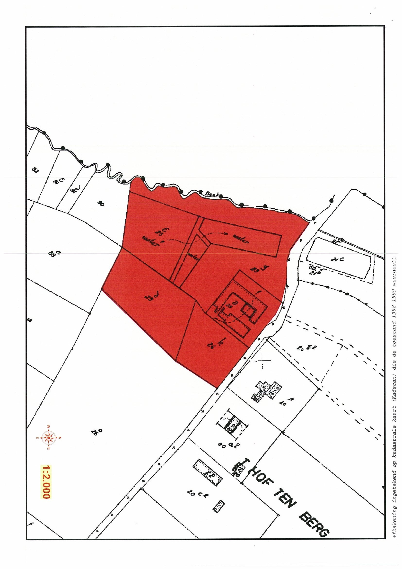
Items opgenomen in dit besluit

De gegevens worden opgehaald


    Downloads

    Bestanden
    Alle bestanden downloaden
    Besluit
    20080311_1.pdf
    Plan
    20080311_1_plan_9_verso.jpg
    Plan
    20080311_1_plan_3_recto.jpg
    Plan
    20080311_1_plan_2_recto.jpg
    Plan
    20080311_1_plan_8_verso.jpg
    Plan
    20080311_1_plan_7_recto.jpg
    Plan
    20080311_1_plan_10_verso.jpg
    Plan
    20080311_1_plan_5_recto.jpg
    Plan
    20080311_1_plan_1_verso.jpg
    Plan
    20080311_1_plan_5_verso.jpg
    Plan
    20080311_1_plan_4_verso.jpg
    Plan
    20080311_1_plan_6_recto.jpg
    Plan
    20080311_1_plan_3_verso.jpg
    Plan
    20080311_1_plan_4_recto.jpg
    Plan
    20080311_1_plan_9_recto.jpg
    Plan
    20080311_1_plan_8_recto.jpg
    Plan
    20080311_1_plan_10_recto.jpg
    Plan
    20080311_1_plan_2_verso.jpg
    Plan
    20080311_1_plan_7_verso.jpg
    Plan
    20080311_1_plan_1_recto.jpg
    Plan
    20080311_1_plan_6_verso.jpg
    Metadata

    Beheerder besluit: Agentschap Onroerend Erfgoed