BESLUIT

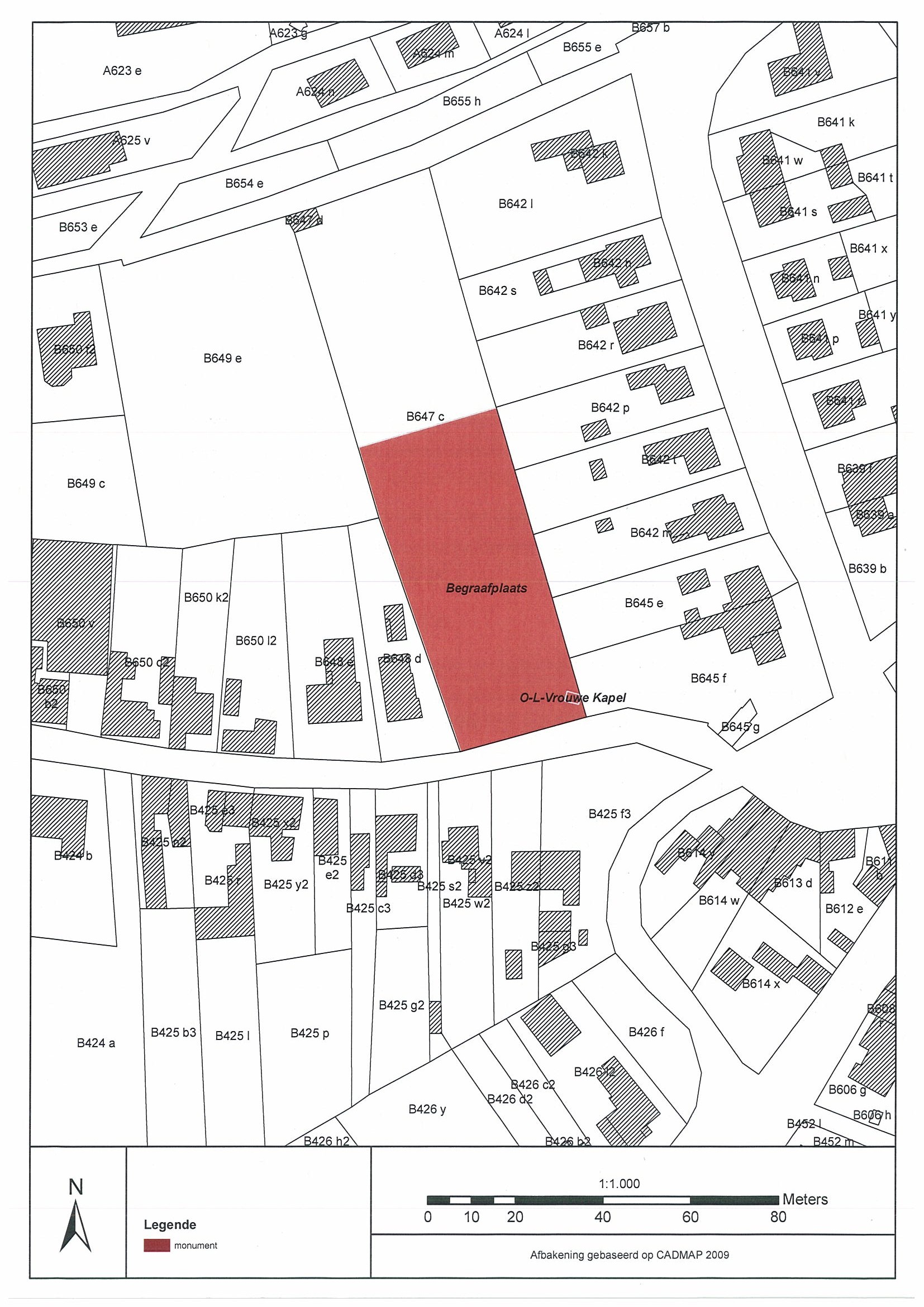
Kapel Onze-Lieve-Vrouw en begraafplaats

ID: 10153 URI : https://id.erfgoed.net/besluiten/10153

Voorlopige beschermingsbesluiten

Aanduidingstype Beschermd monument
Provincie Oost-Vlaanderen
Uitgevaardigd als Ministeriële besluiten
Ondertekend door Bourgeois, Geert
Datum ondertekening
Belgisch staatsblad Gepubliceerd op , jaargang 180, nummer 313
De digitale publicatie kan je vinden
Opmerkingen te Assenede (Boekhoute)

Relaties

Wordt gevolgd door: Kapel Onze-Lieve-Vrouw en begraafplaats
Definitieve beschermingsbesluiten

Items opgenomen in dit besluit

De gegevens worden opgehaald


    Downloads

    Bestanden
    Alle bestanden downloaden
    Besluit
    20100902_6.pdf
    Plan
    20100902_6_plan_recto.jpg
    Plan
    20100902_6_plan_verso.jpg
    Metadata

    Beheerder besluit: Agentschap Onroerend Erfgoed