BESLUIT

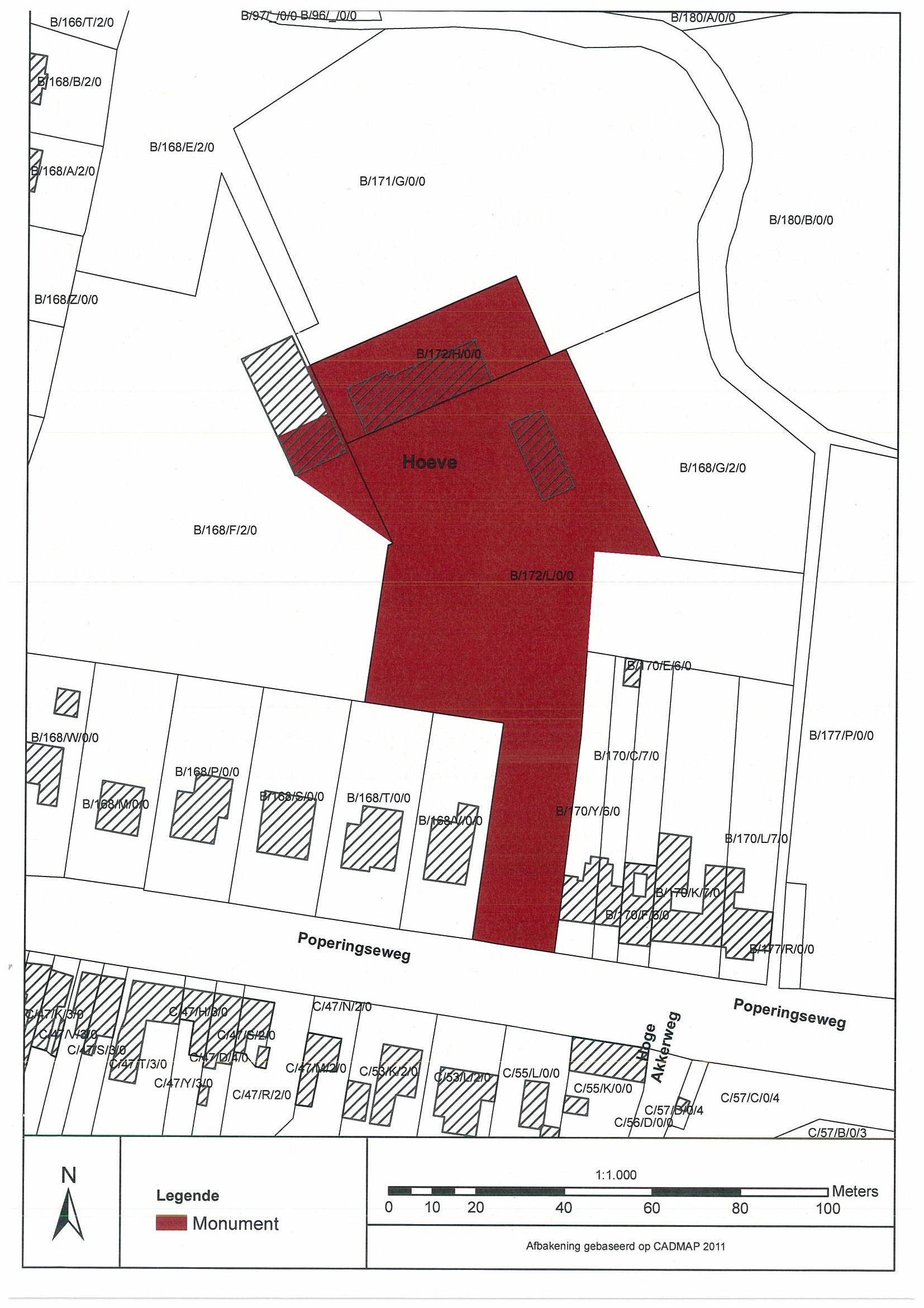
Hoeve

ID: 10108 URI : https://id.erfgoed.net/besluiten/10108

Voorlopige beschermingsbesluiten

Aanduidingstype Beschermd monument
Provincie West-Vlaanderen
Uitgevaardigd als Ministeriële besluiten
Ondertekend door Bourgeois, Geert
Datum ondertekening
Belgisch staatsblad Gepubliceerd op , jaargang 182, nummer 107
De digitale publicatie kan je vinden
Opmerkingen in de Poperingseweg te Ieper (Vlamertinge)

Items opgenomen in dit besluit

De gegevens worden opgehaald


    Downloads

    Bestanden
    Alle bestanden downloaden
    Besluit
    20120229_10.pdf
    Plan
    20120229_10_plan_recto.jpg
    Plan
    20120229_10_plan_verso.jpg
    Metadata

    Beheerder besluit: Agentschap Onroerend Erfgoed